Completed
-
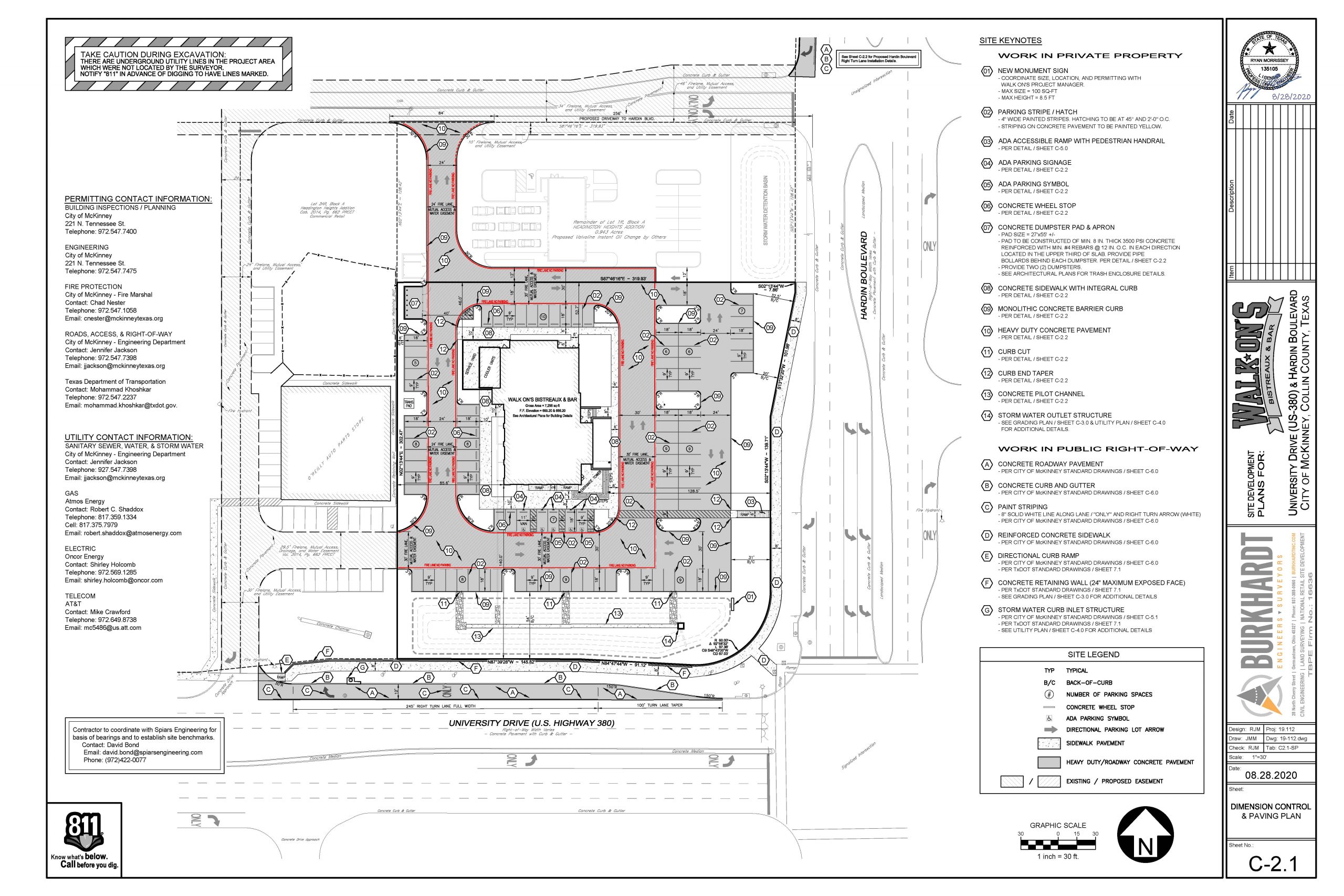
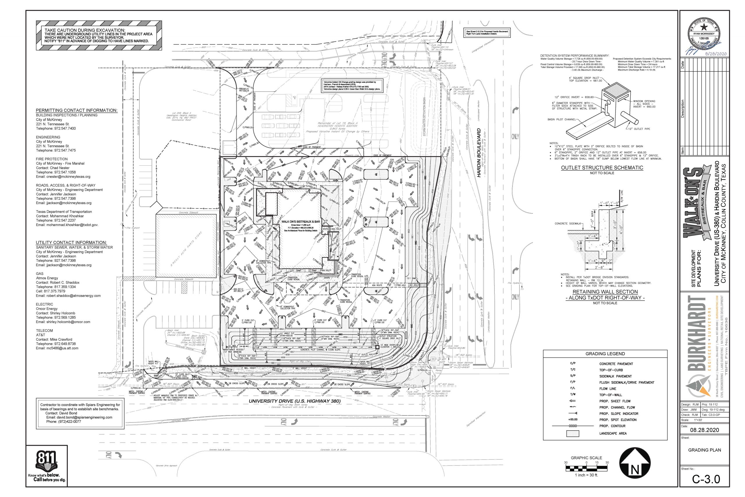
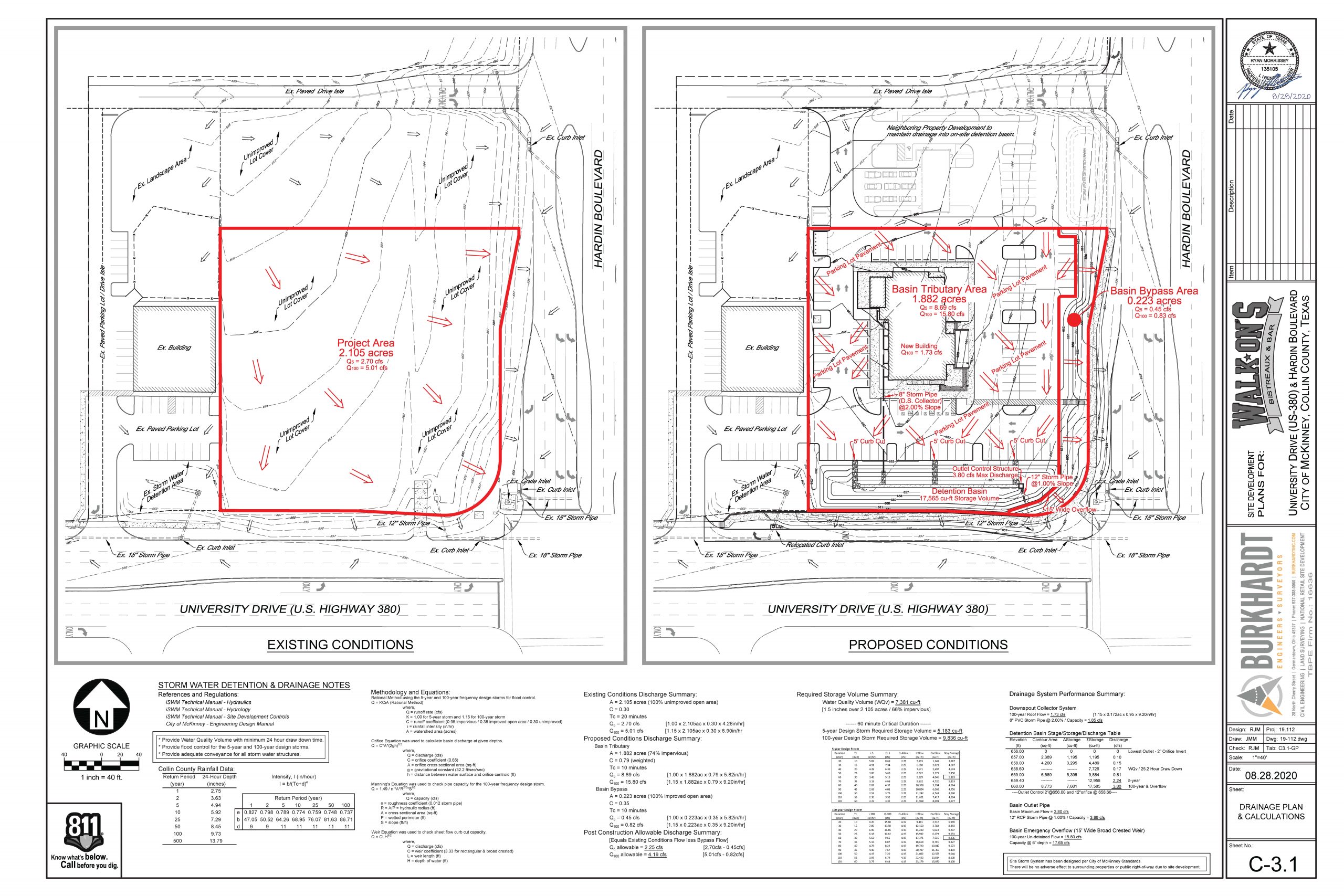
WALK ONS SPORTS BISTREAUX - MCKINNEY
WALK-ONS BISTREAUX & BAR IS A SPORTS THEMED RESTAURANT SERVING LOUISIANA FARE IN AN ENVIRONMENT CONDUCTIVE TO A GREAT GAME DAY EXPERIENCE. THE BUILDING IS A SINGLE STORY STRUCTURE WITH SPLIT LEVEL DINING WITH A FULL SERVICE BAR AND TO GEAUX ORDERING AREA. THE BUILDING WILL BE EQUIPPED WITH A SPRINKLER SYSTEM AND FIRE ALARM IN ACCORDANCE WITH ALL APPLICABLE CODES.
- Client: WCA Design Studio
- Location: Lubbock, Texas
- Surface Area:24,000 SF
- Contracting Investor: WE PAD, LTD.
- Category: Retail
-
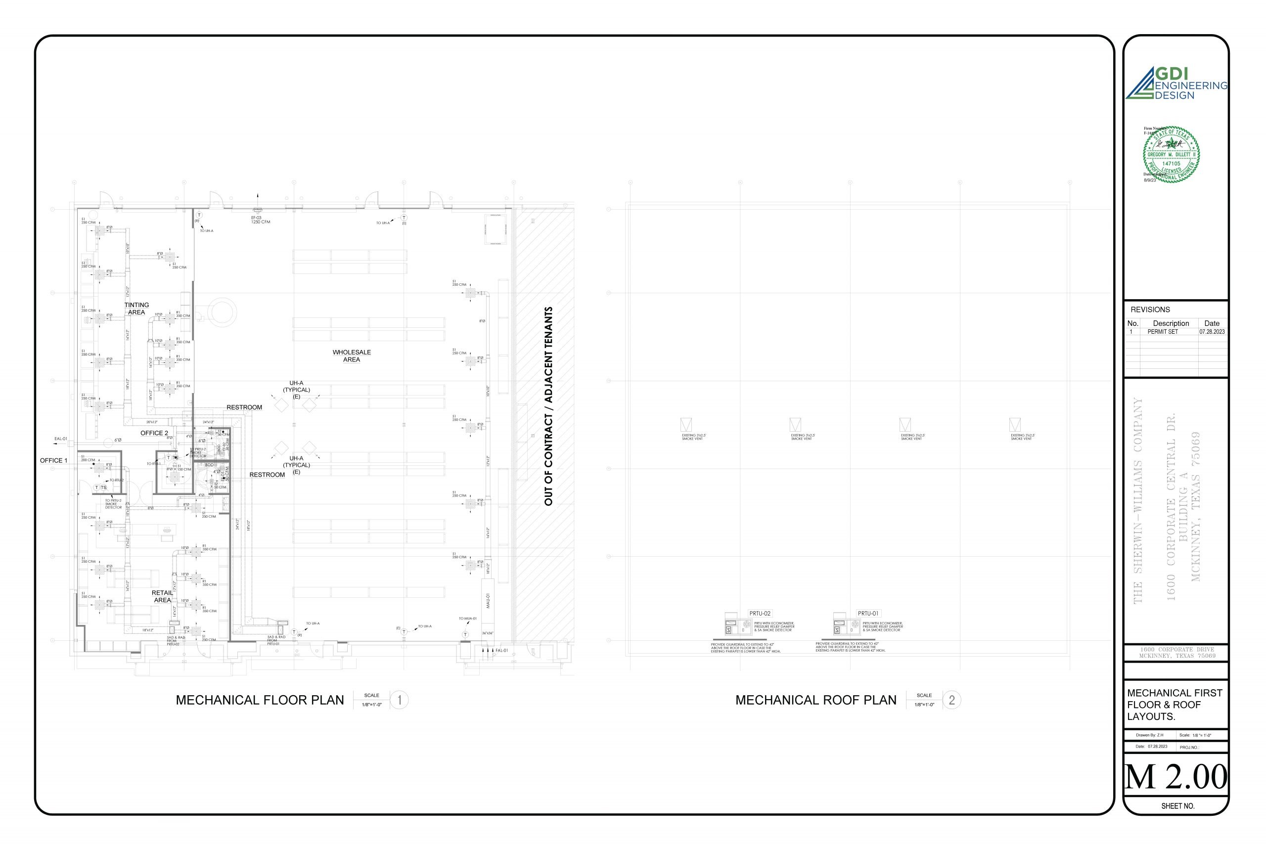
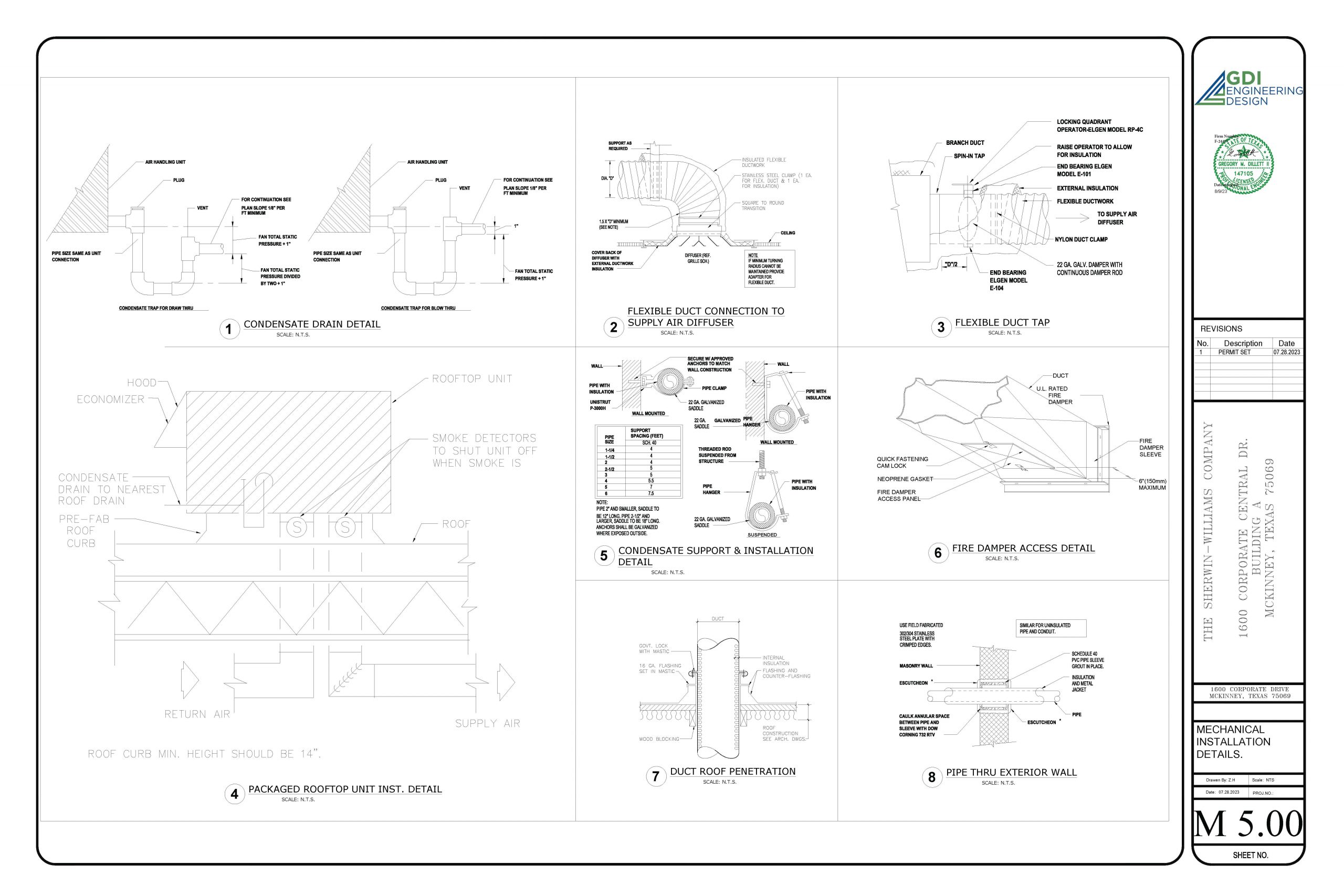
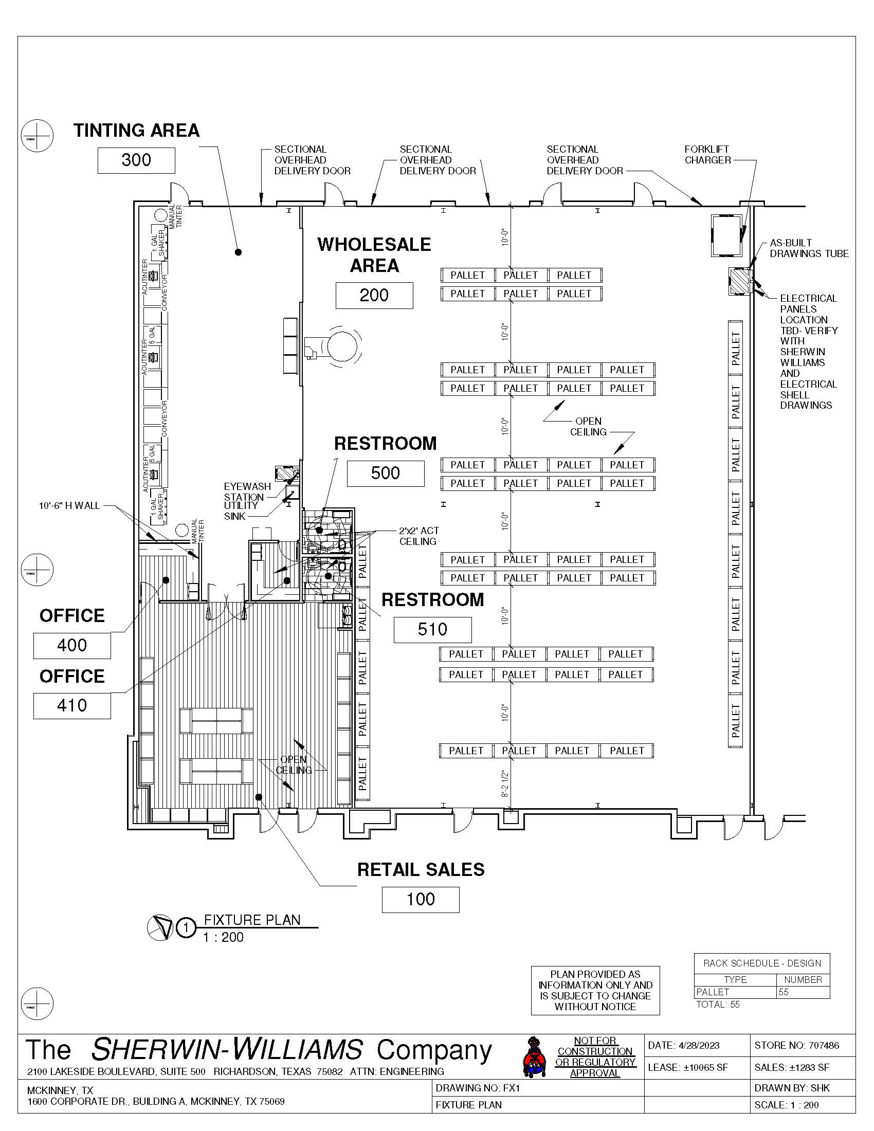
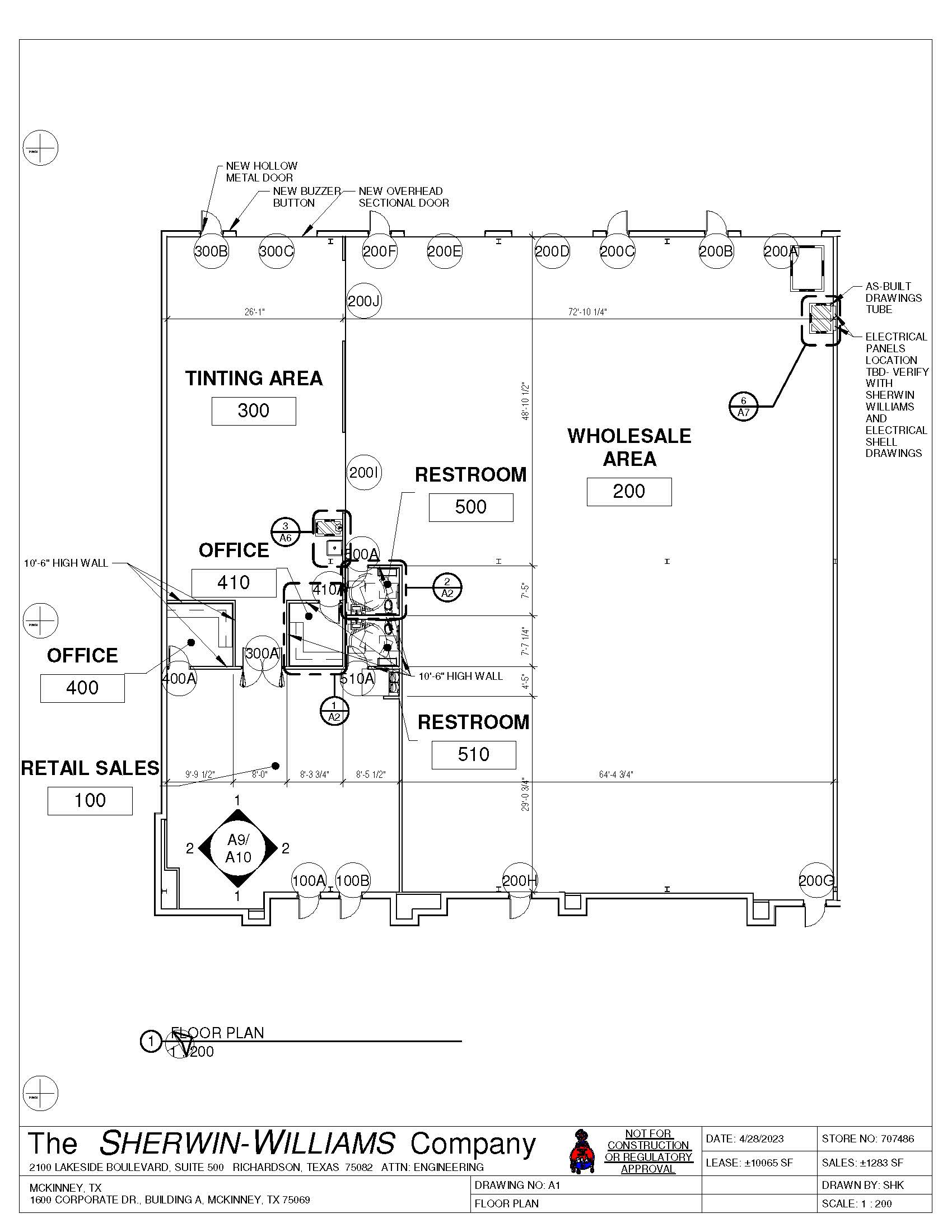
McKinney Sherwin Williams
Sherwin Williams retail: Preparation of MEP set for permit for a retail store Mechanical air conditioning and ventilation provided through two electric cooling / gas heating packaged rooftop units, first dedicated for the wholesale and second related to the remaining rooms.
- Client: Bluestone Partners, LLC
- Location: MCKinney, Texas
- Surface Area:10,065 SF
- Contracting Investor:
- Category: Retail
-
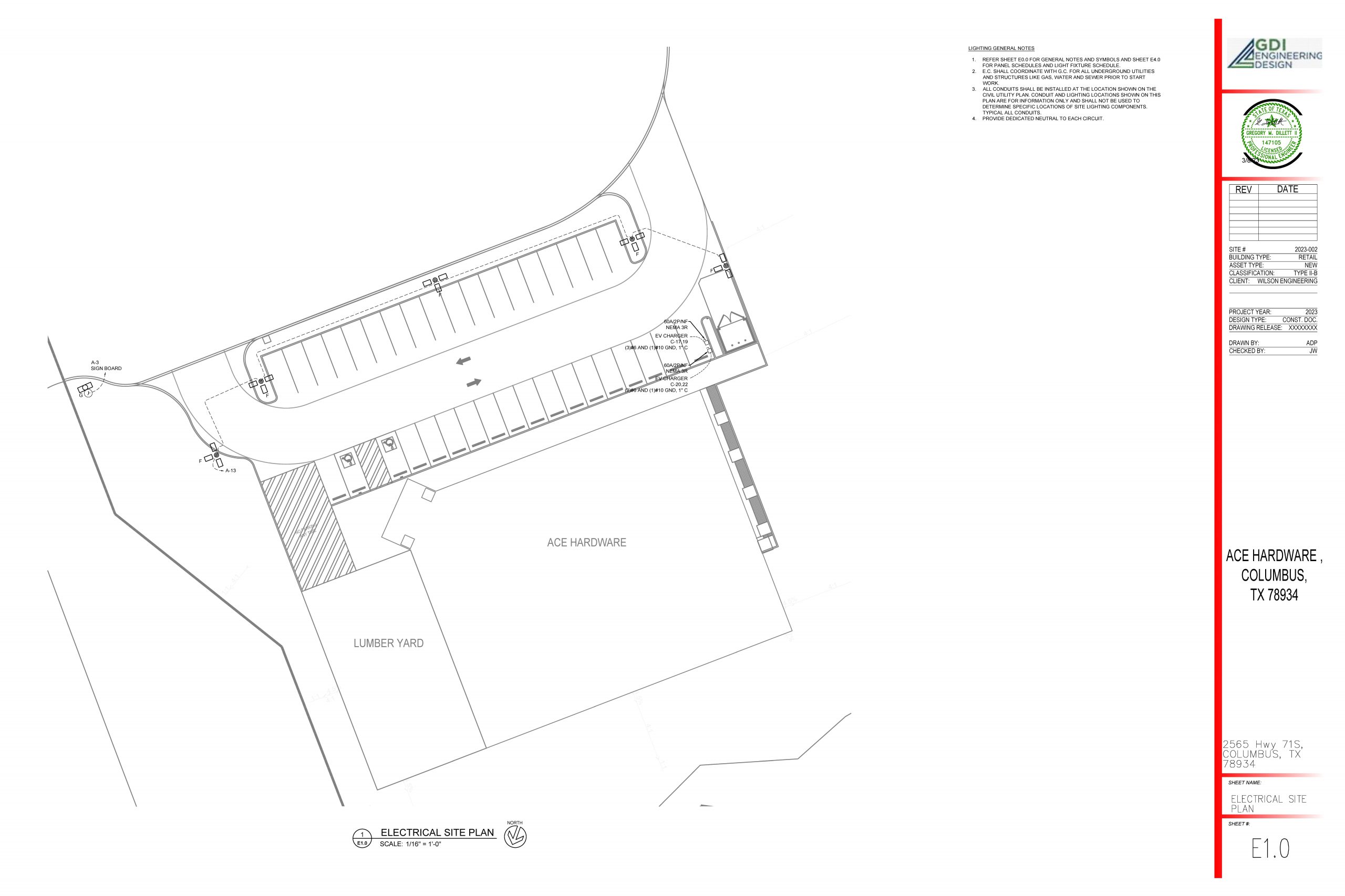
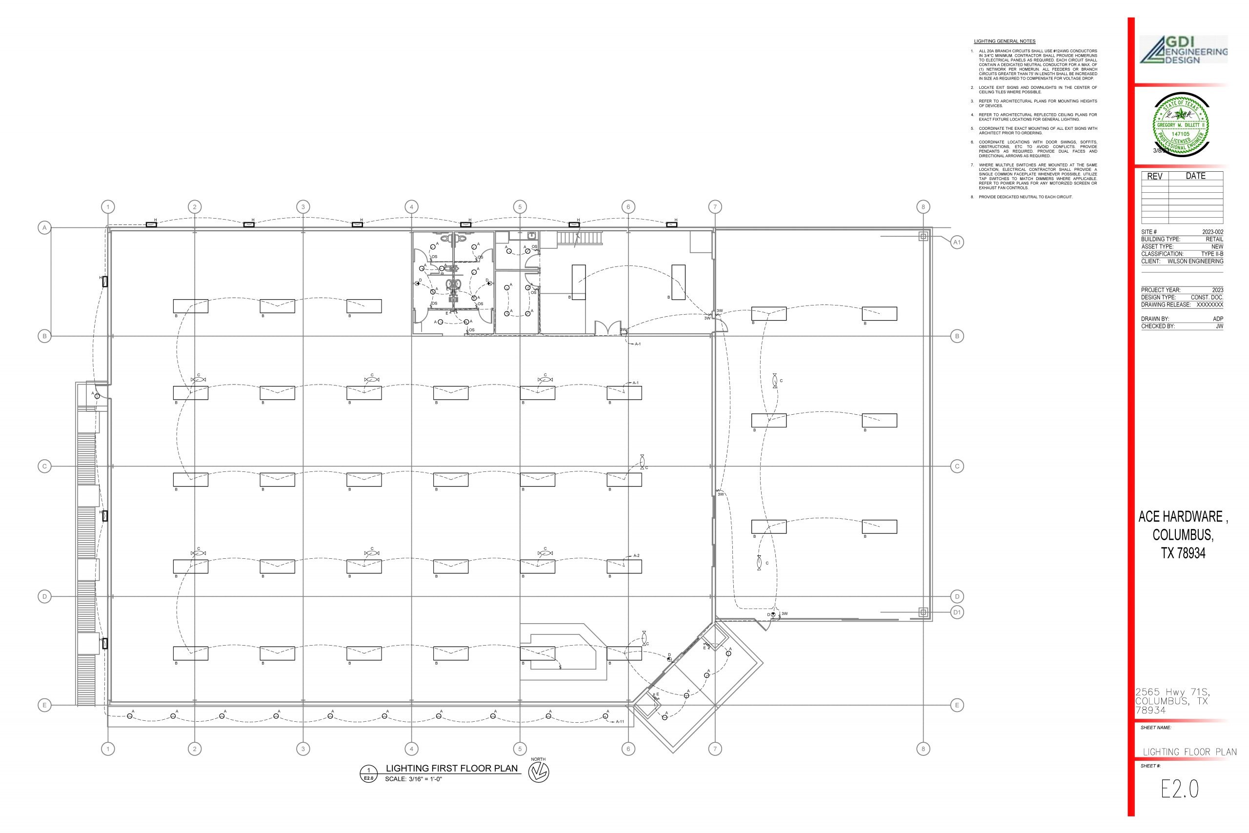
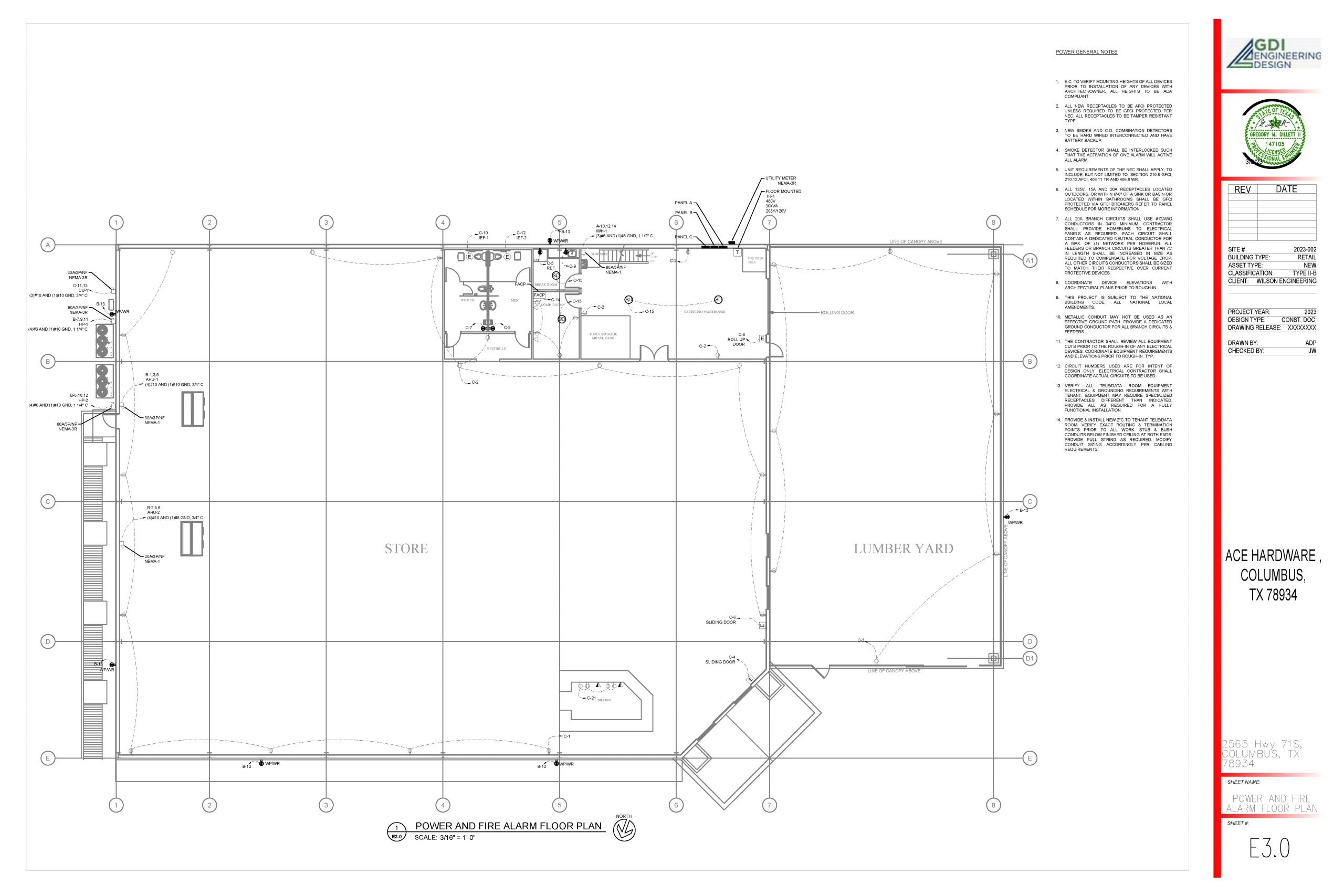
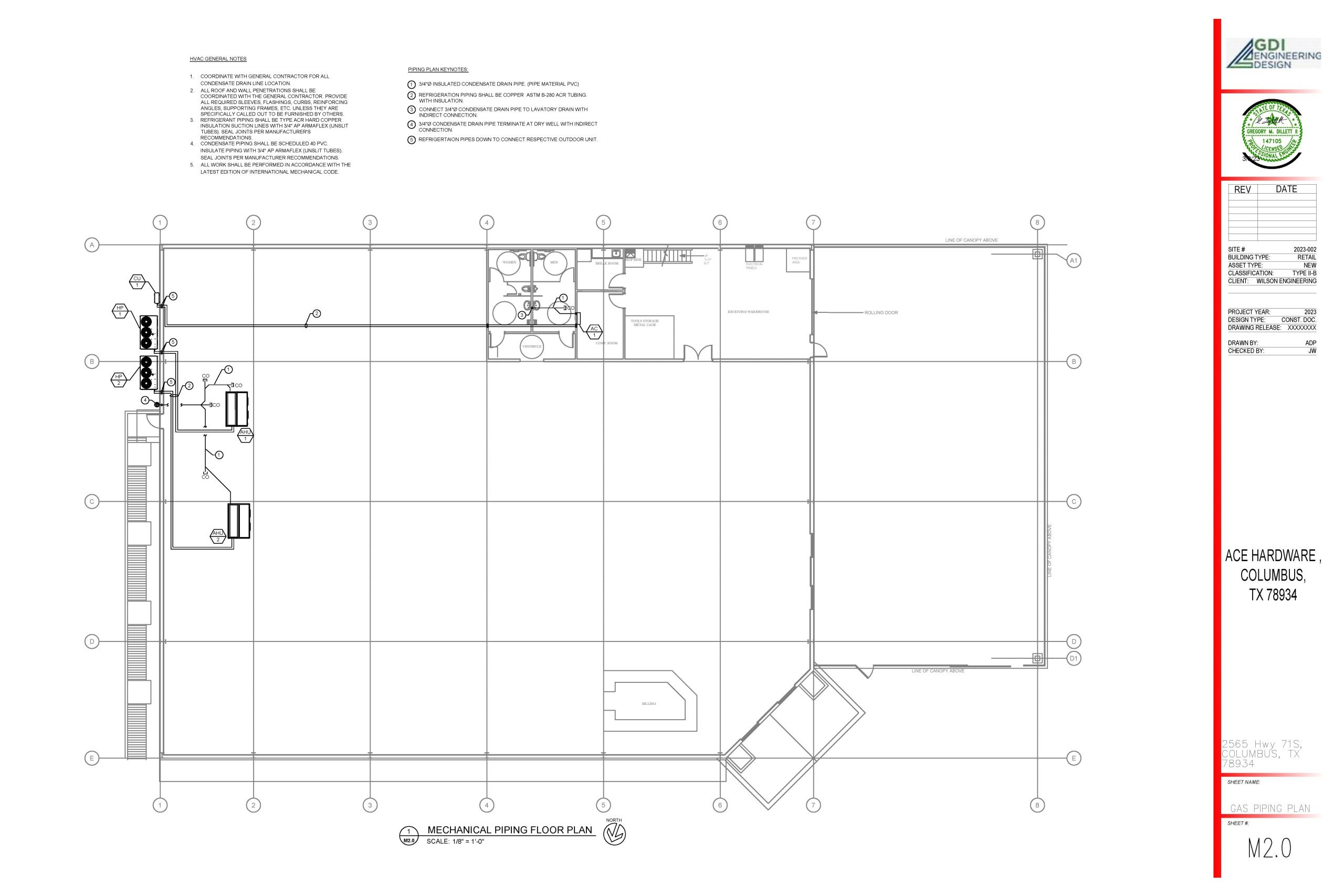
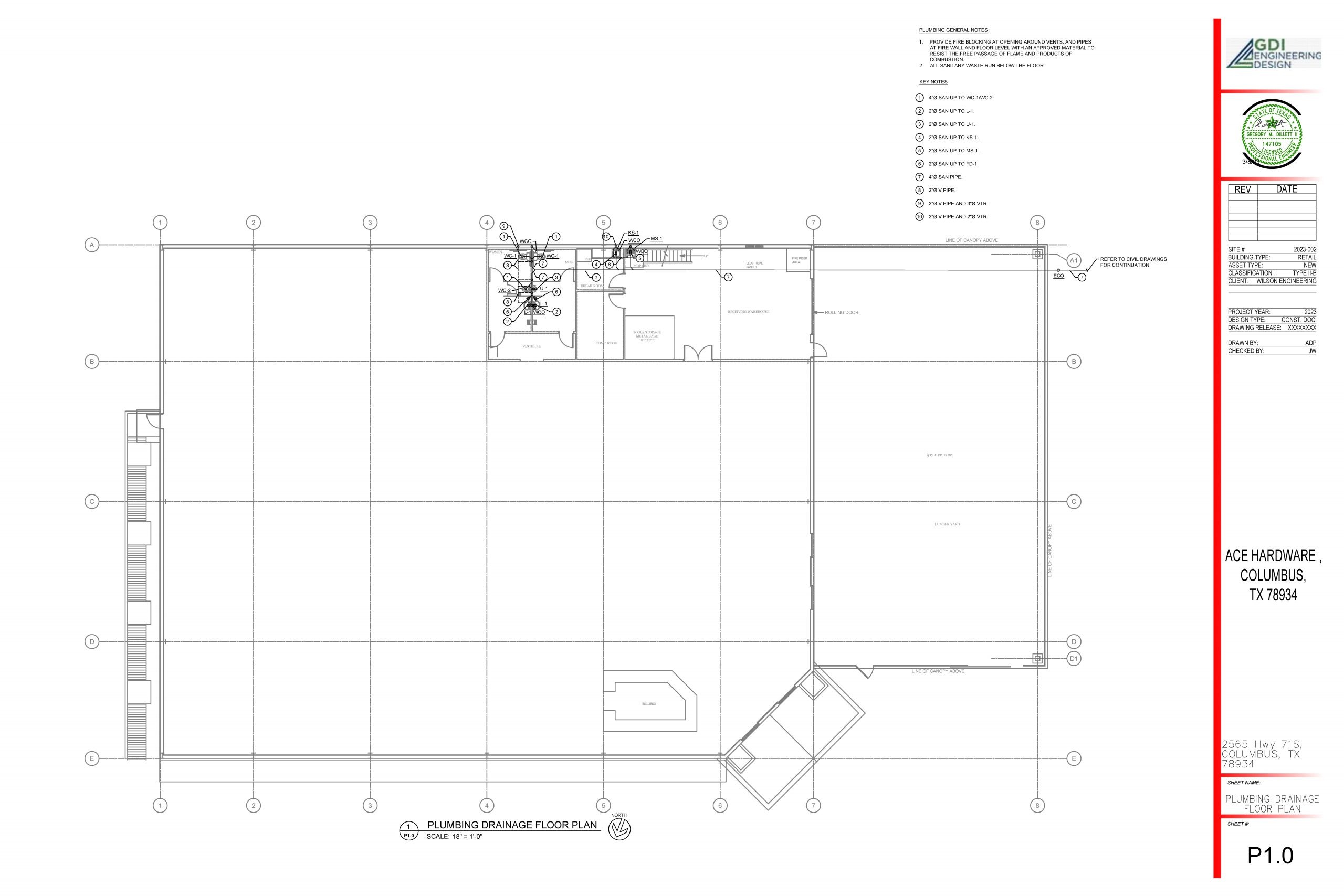
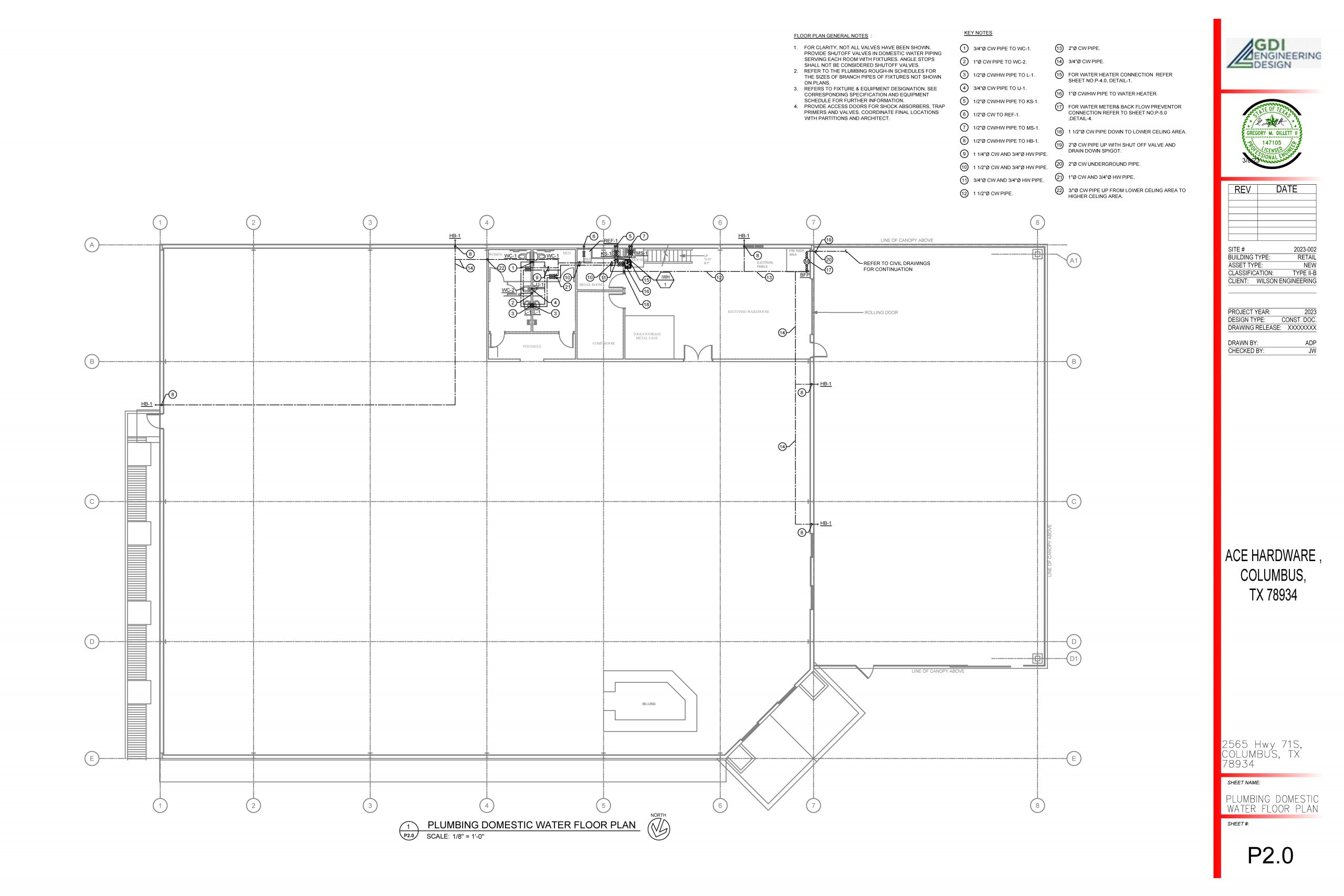
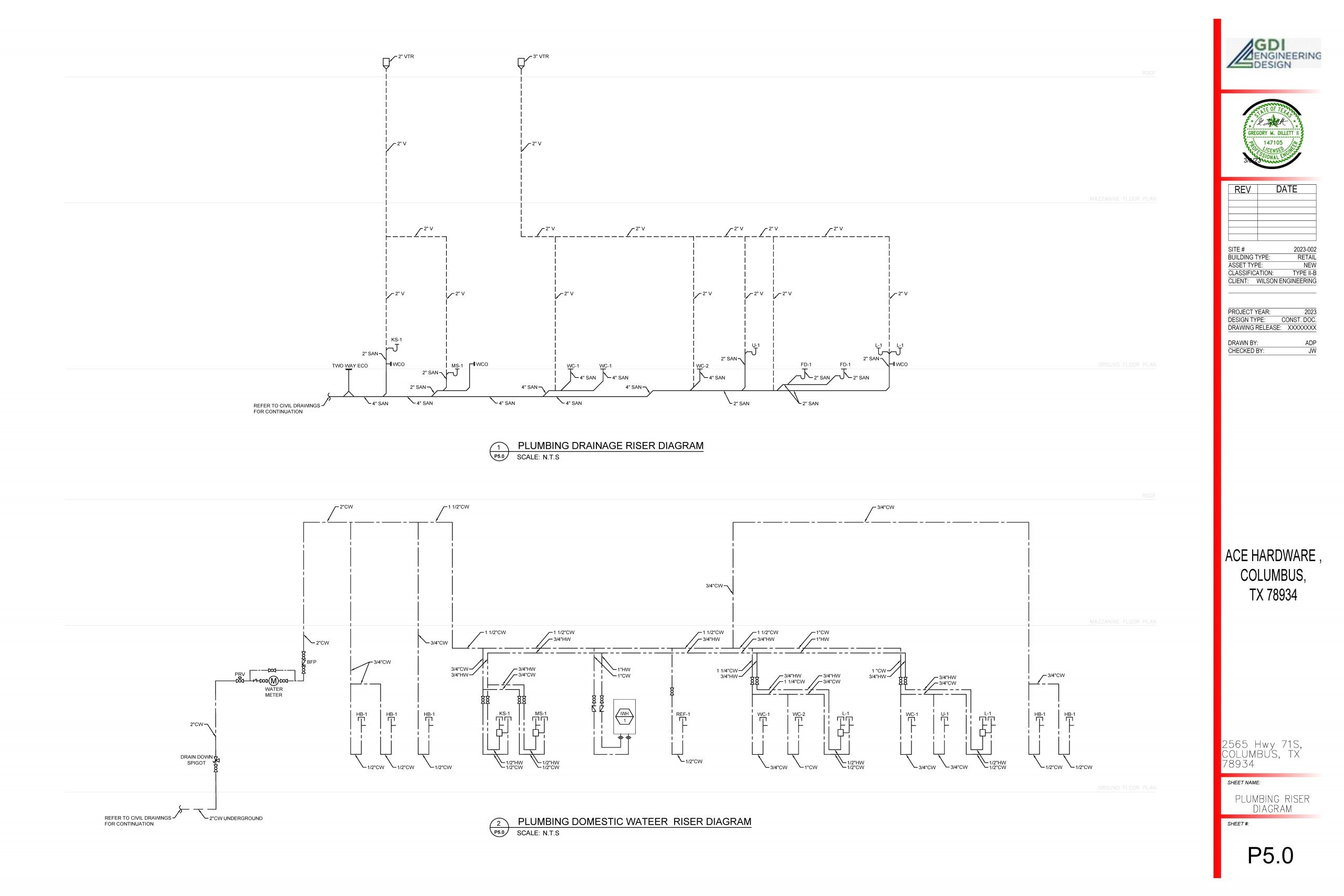
ACE Hardware Columbus Texas
ACE Hardware Store needed special attention to the lighting and cooling of the space. GDI Engineering provided the MEP design.
- Client: Dezynd Architecture, LLC
- Construction Date: -
- Location: Columbus, Texas 78934
- Surface Area: 15,400 SF
- Contracting Investor:
- Value: ~
- Category: Retail
-
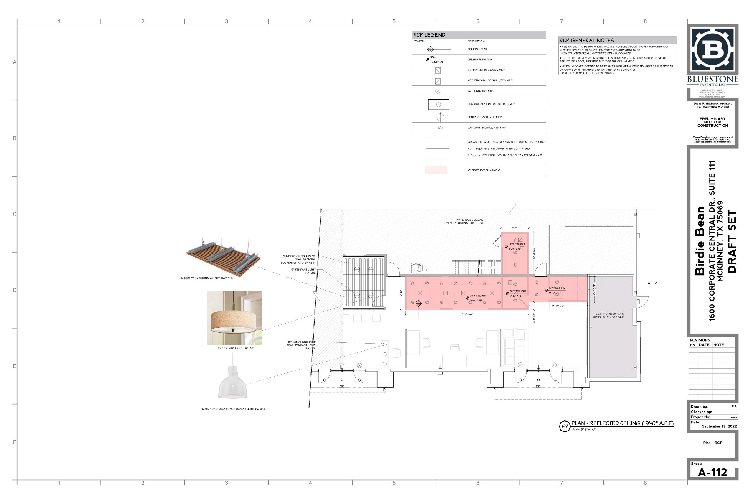
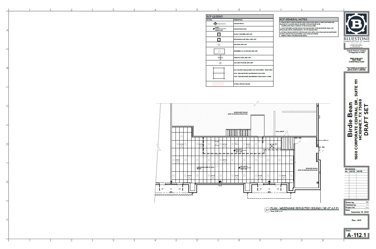
Birdie Bean
Birdie Bean clothing is leasing one bay of the 1600 Corporate Central Dr. in McKinney to house its retail and warehouse. Special considration must be paid to humidity control of the warehouse housing the colthing. GDI Engineering is providing the MEP design.
- Client: Bluestone Partners, LLC
- Construction Date: -
- Location: 1600 Corporate Central Dr., McKinney, Texas 75069
- Surface Area: 6,688 SF
- Contracting Investor:
- Value: ~
- Category: Retail


















































































