This is an existing senior living establishment in Greenwich, CT. The owner is planning to rehabiltate the senior living into 17 apartments. GDI Engineering is tasked to provide the MEP design.
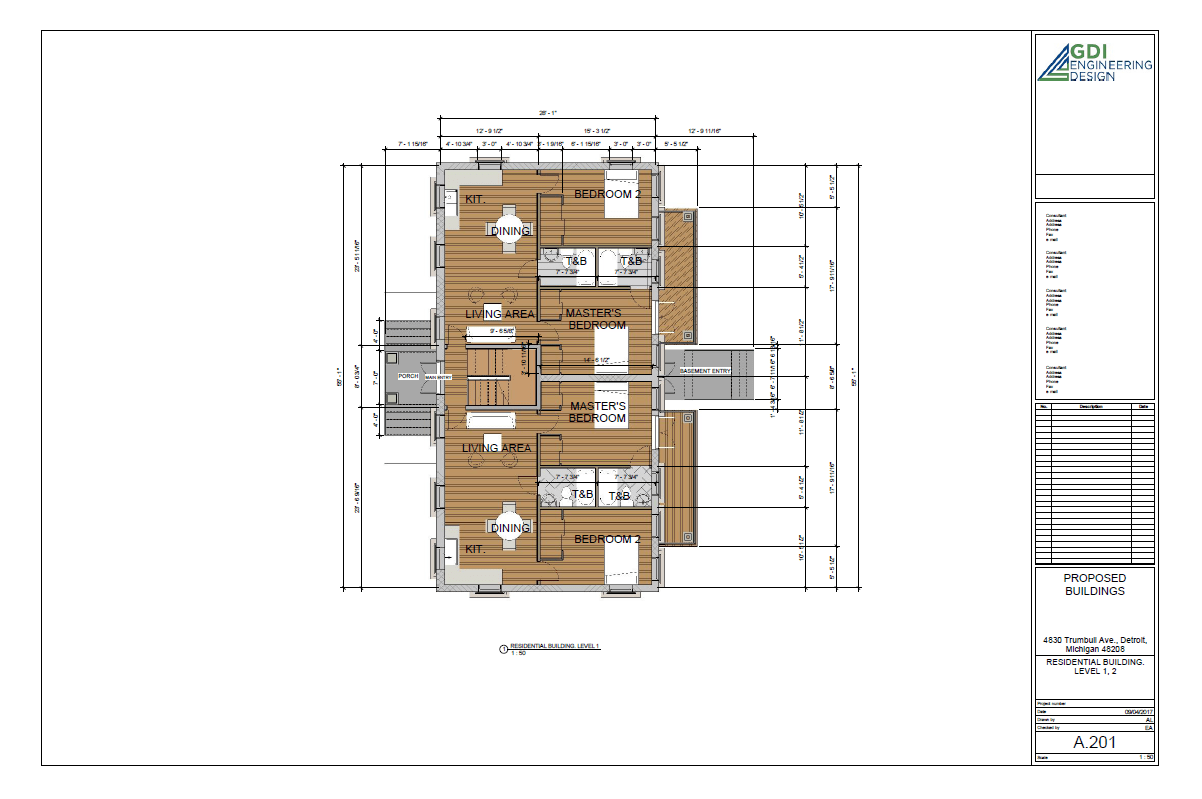
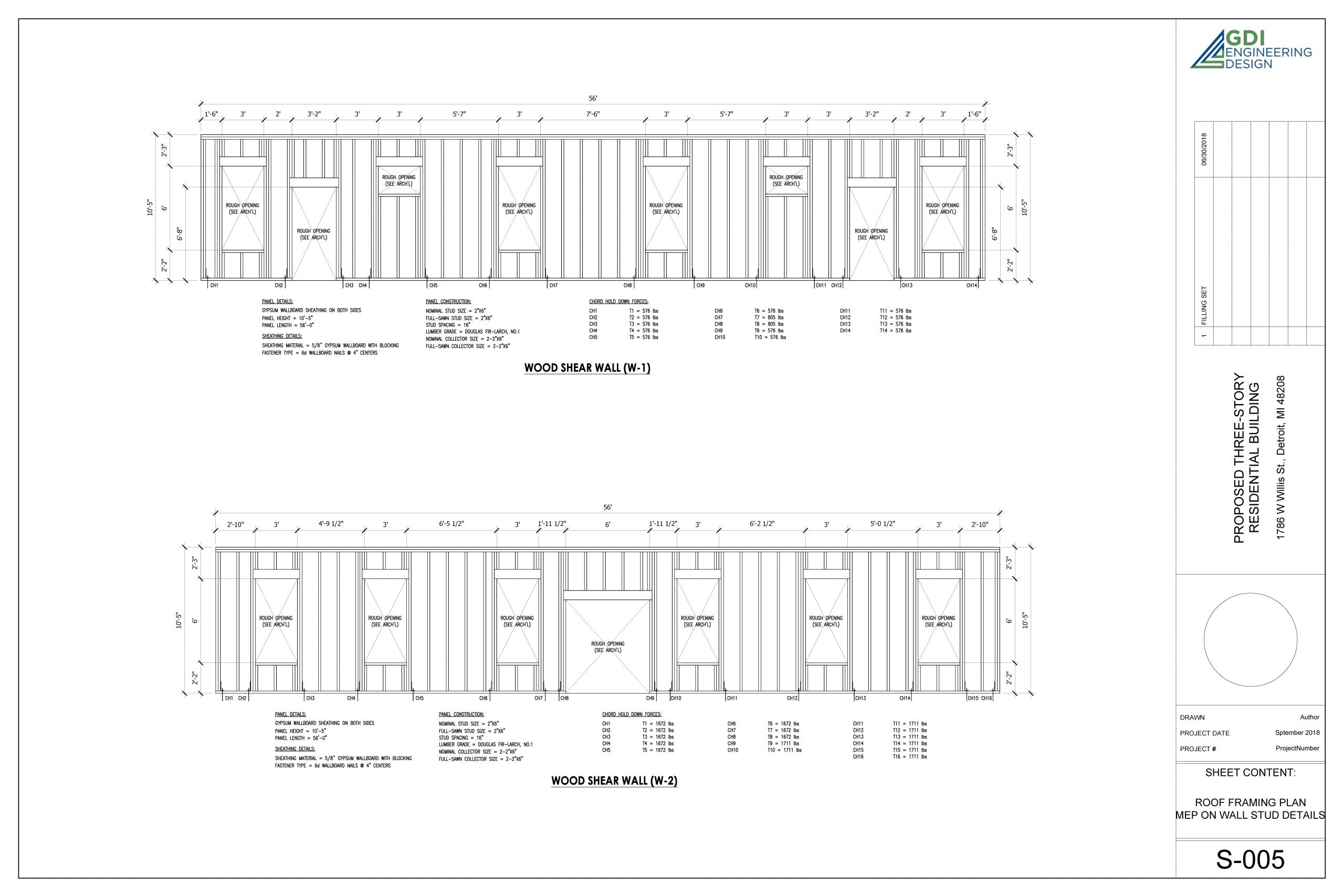
Willis St. Apartments is a six unit aprtment building designed to preserv the neighboring architectural aesthetics. GDI Design was tasked to design the structure and MEP for this project. GDI Design in coordination with the architectural team and the client was able to come up with a viable solution having the structural and mechanical team under the same umberalla.
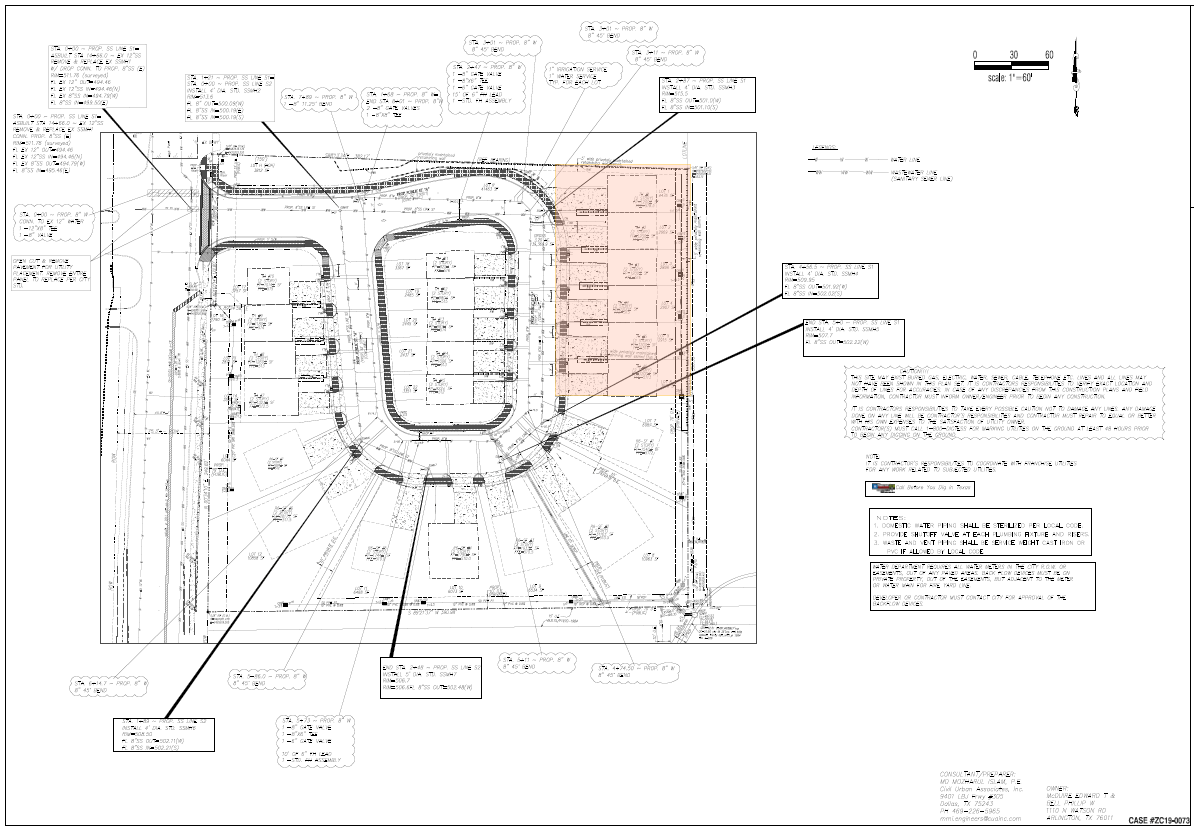
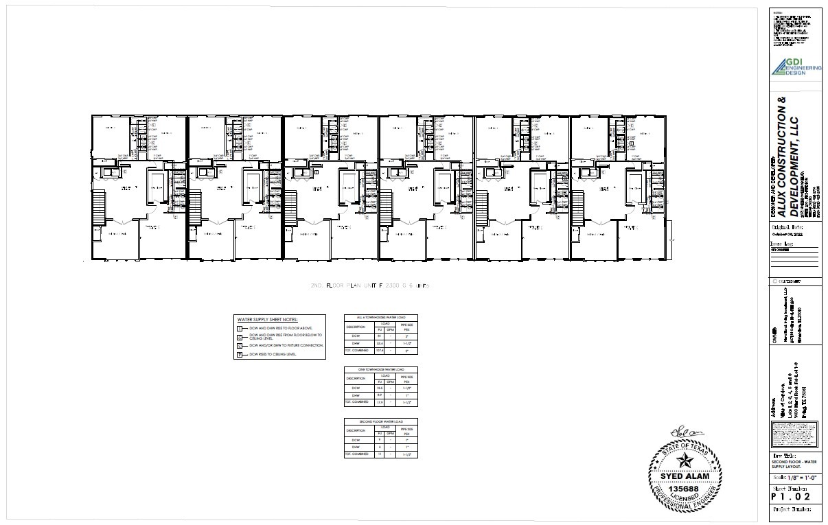
The Hard Rock Rd in Irving Texas is 3.32 acres development. The first phase is a 6 unit Townhouses with a 8,154 SFfoot print in two stories. GDI was tasked to design the MEP for the development. We complete the design in close colaboration with the architect in 12 working days..
Cork St. Apartments is an eighteen unit aprtment building designed to take full advantage of the views with maximum glass. The chalenge was to creat and environmental control system to respond to the demands for comfortable living conditions while keeping efficiency an operational cost in mind. GDI Design was tasked to design the structure and MEP to respond to this challenge. GDI Design in coordination with the architectural team and the client was able to come up with a viable solution having the structural and mechanical team under the same umberalla.
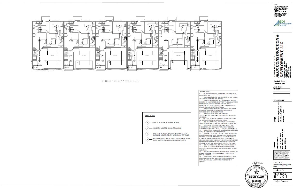
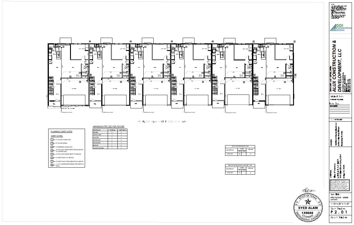
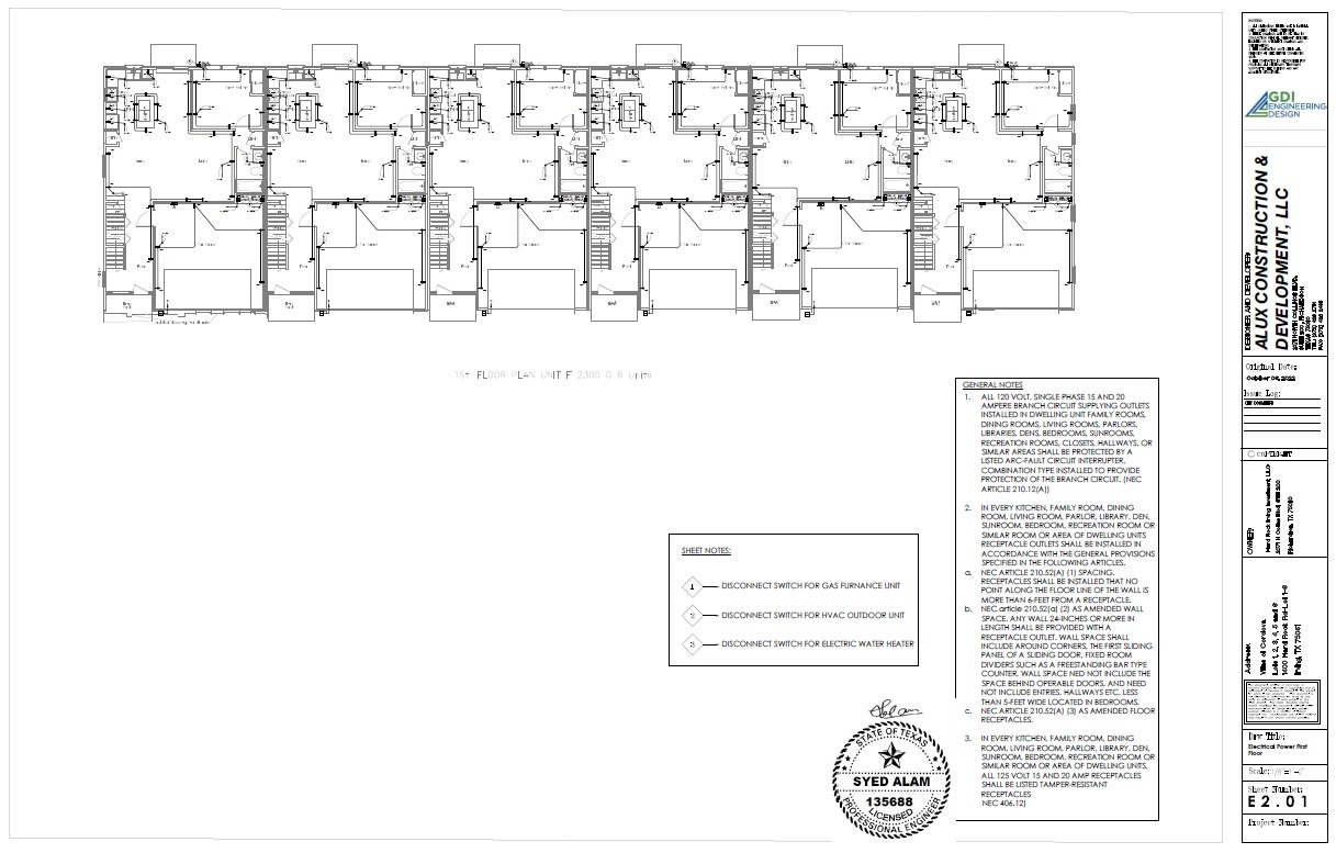
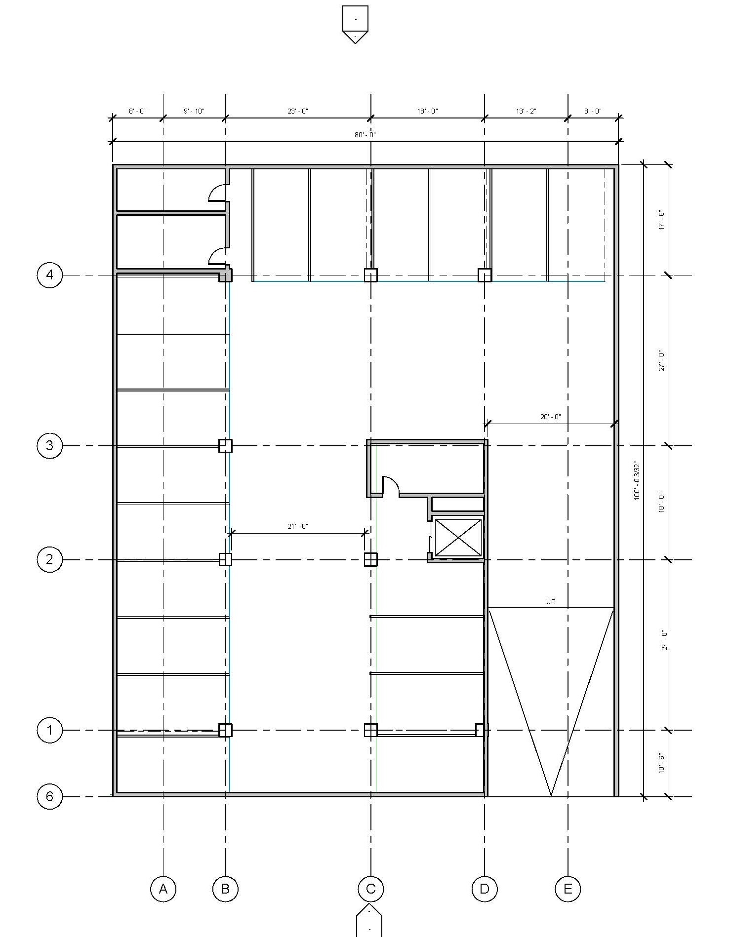
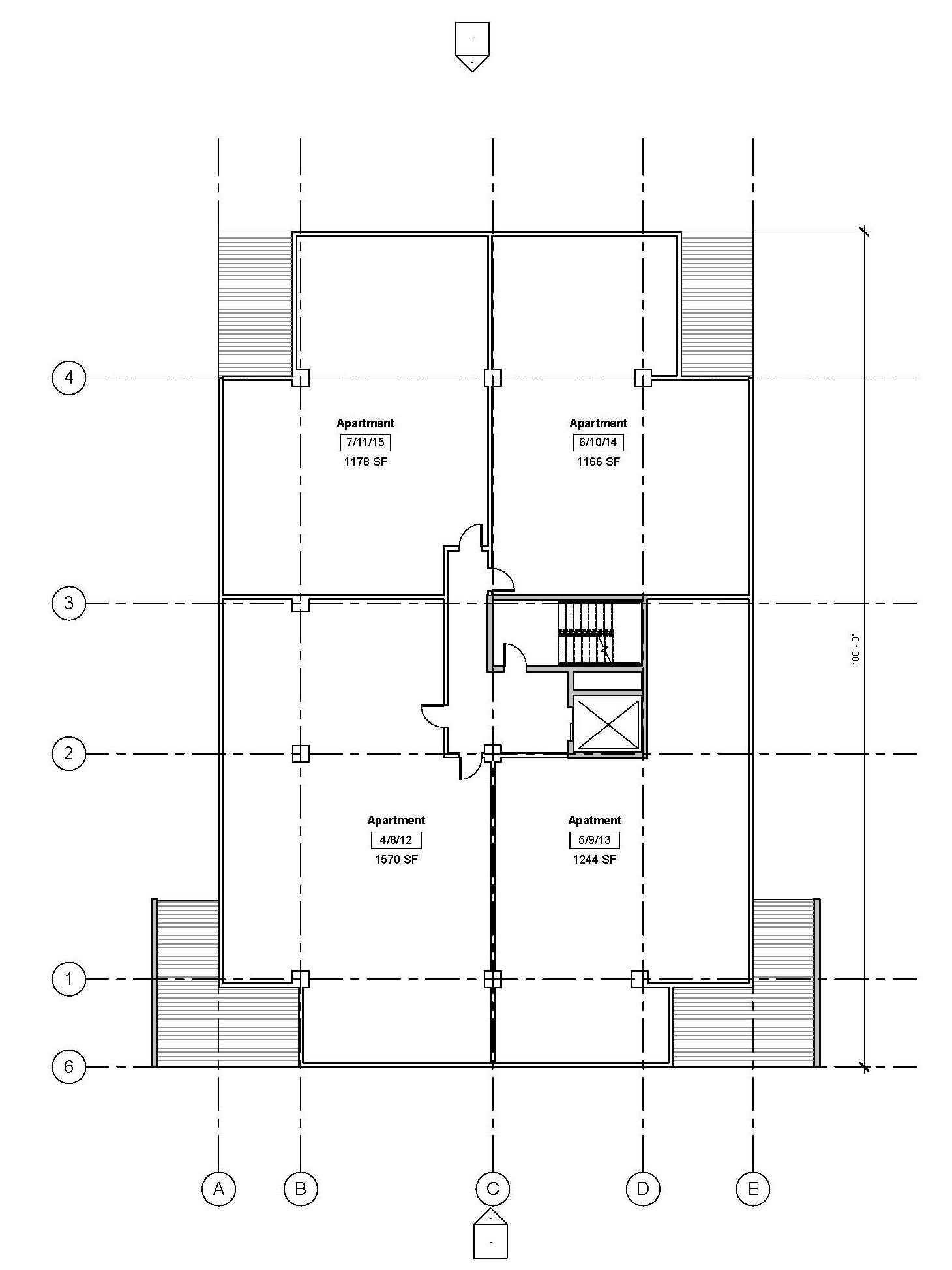
Fort Worth Multifamily 3-Story 6- Unit Apartment MEP Design A new construction with garage on the ground floor, 2nd and 3rd floor living space and a roof top ourdoor space. GDI Engineering is tasked with designing the MEP for the apartments.
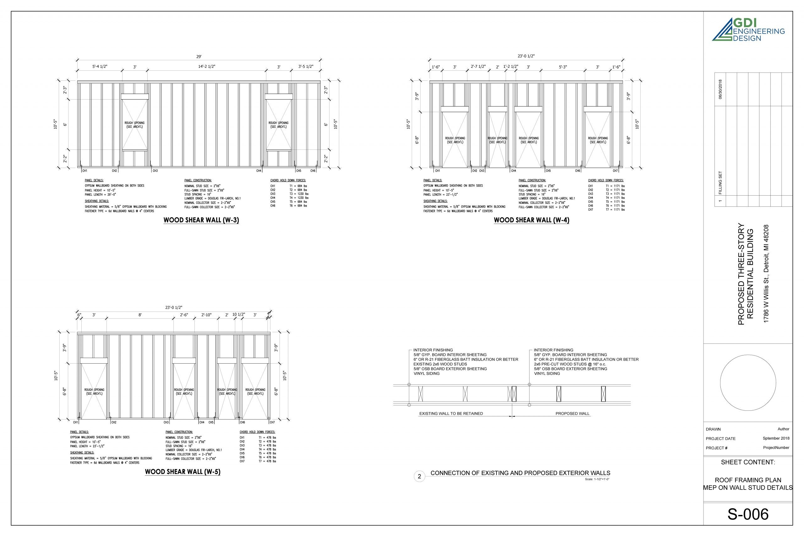
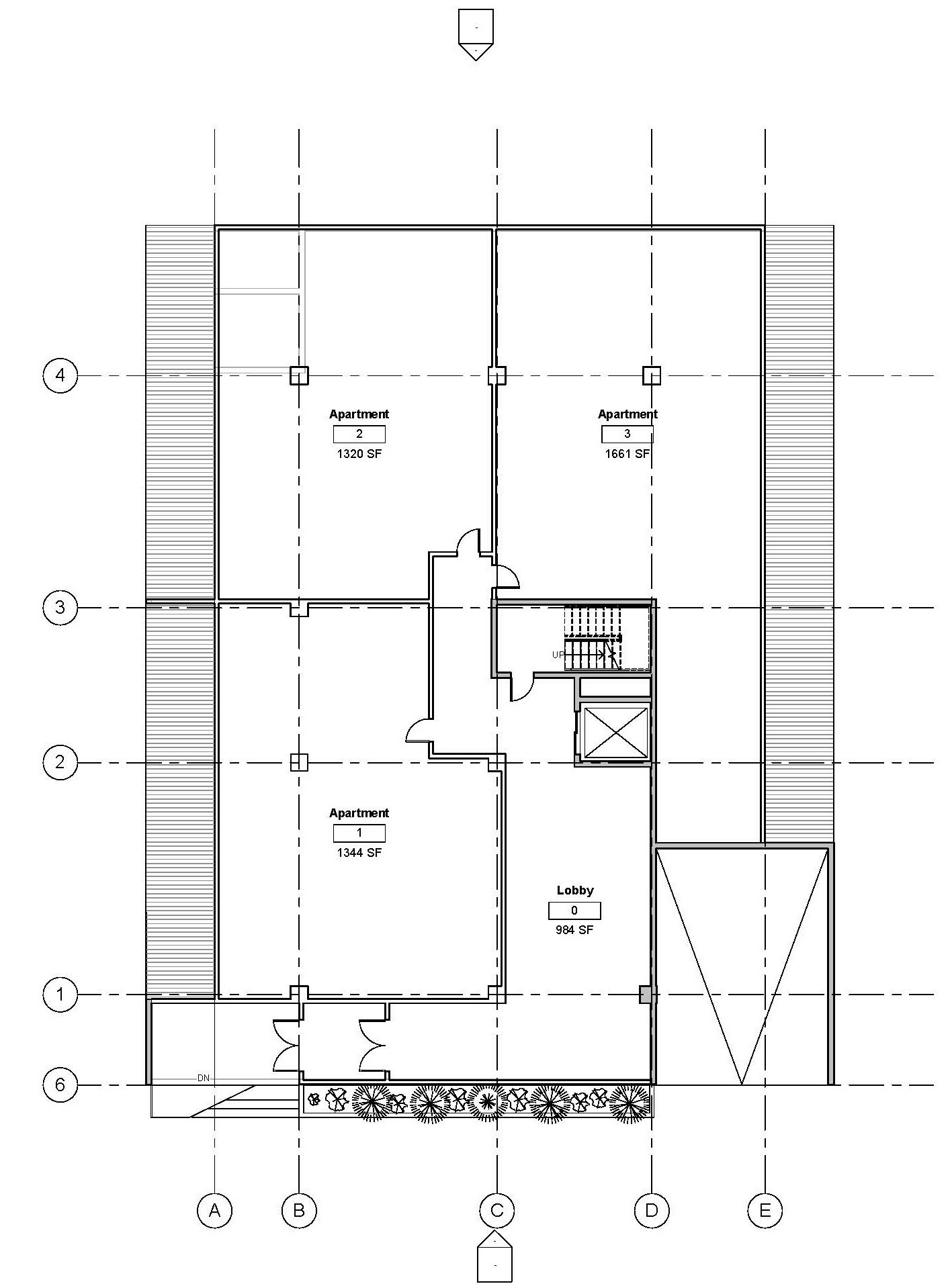
Trumbull Apartments is 3 stories with 6 units. The basement contains the common area. GDI was responsible for designing the strucuture and MEP of the building. Both disciplines were completed earlier than planned and went through plan checks with no comments.
Try it for free . No registration needed.Â
Headquarter:
32 W. 8th St. suite#607 – Erie PA, 16501
Offices:
Houston   Miami Los Angeles

Harrington Trail is a new home community nestled in the piney woods of Northeast Montgomery County, Texas. The project’s recreational facility, located in New Caney, Texas, spans 1800 square feet. GDI was tasked with the structural and mechanical, electrical, and plumbing (MEP) design of this facility. The design leverages the natural setting, incorporating elements that complement the surrounding wooded environment. With thoughtful planning and execution, GDI’s work has created a welcoming gathering space for the Harrington Trail community to enjoy. The recreational facility serves as a hub for residents to connect, relax, and participate in activities amidst the tranquil forest landscape of their new neighborhood. GDI’s design expertise has helped bring this vision to life, delivering a functional and aesthetically pleasing facility that enhances the overall lifestyle experience for Harrington Trail homeowners.

The Badminton Center at 1600 Corporate Central Dr. in McKinney, Texas is a 23,841 SF facility that will house 16 badminton courts. Special consideration was given to the HVAC system design to ensure it would not interfere with the lightweight shuttlecocks, and the lighting was designed to provide even coverage without disturbing the players. GDI Engineering provided the comprehensive mechanical, electrical, and plumbing (MEP) design for the project.
The mechanical scope included HVAC layout and equipment selection, ventilation and heat load calculations, and general details. The electrical scope covered power distribution, lighting design, load analysis, and electrical diagrams. The plumbing scope included water supply, drainage, fixtures, and gas supply layouts, as well as all necessary calculations and diagrams. The integrated MEP design ensures the Badminton Center will meet code requirements and provide a high-quality playing environment for athletes.

The Works Progress Administration (WPA) built a swimming pool and bathhouse in Swenson Park in Spur,
Texas between 1935 and 1937. The pool operated until its closure in 2009.
Last summer, the city of Spur began evaluating the condition and history of the WPA-constructed
bathhouse, with the goal of rehabilitating the facility to provide usable public restrooms for the city’s
largest park.
The city council voted to solicit bids for the interior repairs, and GDI Engineering was selected by WCA
Design Studio to provide the mechanical, electrical, plumbing, and structural design services for the pool
facility renovation project.
By restoring this Depression-era WPA landmark, the city aims to preserve an important piece of local
history while enhancing the amenities available to visitors of Swenson Park.
The completed project will ensure the continued public use and enjoyment of this historic community
asset.

The WEC Retail project in Florida involved the preparation of MEP (Mechanical, Electrical,
and Plumbing) and structural design for a retail development.
The MEP design covered a total of 7 warm shell buildings intended for retail use, including
tenant improvement plans for specific units.
The mechanical design incorporated chilled water air handling units connected to a district
cooling network, flexible ductwork layout, and plumbing for restrooms and HVAC drainage.
The electrical design included lighting, power, and emergency lighting for the buildings.
Structural analysis and design were performed for the foundations, columns, walls, slabs,
beams, and roof framing.
Deliverables included construction documents, load calculations, Revit models, and energy
compliance reports. This comprehensive design work aimed to provide a turnkey solution
for the retail development project in Florida.

GDI Engineering is proud to have provided comprehensive MEP design services for the new ACE Hardware Store located in Osceola, Arkansas. This prototype store, spanning 12,526 square feet, required meticulous attention to both lighting and cooling systems to ensure an optimal shopping experience. Our team collaborated closely with the structural engineers to determine the placement of packaged rooftop units, ensuring they met the necessary space requirements. We also prioritized the design of ductwork to maintain a clear ceiling height of 12 feet, facilitating efficient operations and enhancing the overall aesthetic of the retail environment.
Our deliverables included detailed mechanical, electrical, and plumbing layouts, complete with specifications, equipment schedules, and installation details. We implemented a robust ventilation system to manage airflow throughout the building, including restroom exhaust and paint mixing areas, while ensuring compliance with all relevant codes. Additionally, we carefully planned the plumbing layout to include strategically placed hose bibs for cleanliness and maintenance. This project exemplifies GDI Engineering’s commitment to delivering tailored solutions that meet the unique needs of our clients in the retail sector.

GDI Engineering provided comprehensive MEP (Mechanical, Electrical, and Plumbing) design services for the 15,400 SF ACE Hardware Store located in Columbus, Texas 78934. To address the client’s need for special attention to the lighting and cooling of the space, GDI’s scope included detailed design and engineering work across all MEP disciplines. This encompassed water supply and sewer calculations, HVAC system design with equipment selection, power and lighting plan development, fire alarm integration, and obtaining all necessary approvals through the plan-check process. GDI’s holistic approach ensured the ACE Hardware Store had an efficient and well-integrated MEP system that met all requirements and regulations.

This 24,000 SF sports-themed restaurant in Lubbock, Texas provides a lively atmosphere perfect for game day. The single-story building features split-level dining with a full-service bar and to-go ordering area. The design creates a conducive environment for guests to enjoy Louisiana-inspired fare while catching the big game. The building is equipped with a sprinkler system and fire alarm to meet all applicable codes and safety standards.

In McKinney, Texas, our team completed the MEP (Mechanical, Electrical, and Plumbing) design for a new Sherwin Williams retail store. The project encompassed a total surface area of 10,065 square feet.
The key aspects of the project included:
Mechanical Systems: The HVAC system consists of two electric cooling and gas heating packaged rooftop units – one dedicated to the wholesale area and the other serving the remaining spaces. The rooftop units were strategically placed to align with the existing building openings. The design also included detailed ventilation and heat load calculations to ensure code compliance and occupant comfort.
Electrical Systems: The electrical scope covered the power distribution, lighting, and controls. This included the preparation of power plans for tenant equipment, mechanical, and plumbing loads. A dedicated electrical meter was provided for the tenant space. The lighting design incorporated both normal and emergency lighting systems with comprehensive lighting controls.
Plumbing Systems: The plumbing design addressed the water supply, drainage, and waste networks for the restrooms and tenant equipment. It featured an electric water heater, floor drains for the restrooms, and area drains as required. The plumbing design was coordinated with the existing shell provisions.
The project also included the preparation of a COMcheck energy report covering the internal lighting, external lighting, and mechanical equipment to ensure energy code compliance. Our team provided comprehensive MEP design services, addressing one internal round of comments and all city permitting requirements until the final approval was obtained.

Birdie Bean Clothing Retail and Warehouse
Birdei Bean Clothing is leasing a 75′ x 100′ space at 1600 Corporate Central Dr. in McKinney, TX to house its retail storefront and warehouse operations. Special attention will be paid to humidity control in the warehouse area where the clothing will be stored.
The MEP (mechanical, electrical, and plumbing) design for this project is being provided by GDI Engineering. The key elements of the MEP scope include:
The mechanical, electrical, and plumbing (MEP) systems for this project are designed to meet the specific needs of Birdie Bean’s retail and warehouse operations. The mechanical scope includes a rooftop HVAC unit to condition the non-warehouse spaces, as well as ceiling-mounted dehumidifiers in the warehouse and storage areas to control humidity.
Ventilation and cooling load calculations will be performed to properly size the mechanical equipment.
Electrically, the design will provide power distribution for the HVAC, lighting, and other building systems, along with a lighting layout and electrical load analysis.
The plumbing scope encompasses water supply, drainage, and gas piping, with relevant fixture unit load calculations.
The integrated MEP design will ensure the building infrastructure supports Birdie Bean’s requirements while meeting all applicable code standards for a comfortable and energy-efficient environment.

The Frullati Cafe project involved ensuring the functionality and efficiency of the existing restaurant space
through comprehensive mechanical, electrical, and plumbing (MEP) upgrades. The key aspects of the project
include:
·Preparation of MEP plans for the cafe’s permit, leveraging the existing infrastructure like the kitchen hood, gas
system, power supply, and grease trap. The MEP design addressed the client’s specifications and local code
requirements based on the new occupancy defined in the architectural plans.
·Engineering calculations and MEP system adaptations to accommodate the client’s needs, while keeping the
existing service connections (water, gas, electrical, and sewer) unchanged. The project scope also considered
removing the existing kitchen hood, as it was not required for the new Frullati Cafe layout.
·Comprehensive MEP scope, including mechanical layout, electrical power and lighting plans, and plumbing
supply, drainage, and gas networks. The design ensured code compliance and integration with the client’s
equipment and fixtures.
This project demonstrates the team’s ability to optimize the functionality of an existing commercial space by
integrating new tenant requirements with the existing building systems, ensuring a seamless and code-compliant
transition for the Frullati Cafe.

The MEP (mechanical, electrical, and plumbing) design for the Leander Coffee cafes includes comprehensive HVAC, power, lighting, and plumbing systems. The HVAC layout covers air conditioning, heating, and ventilation, with heat load and ventilation calculations to size the equipment properly. The electrical design maps out the power distribution, including outlets, appliance connections, and a lighting plan for the shop floor and drive-thru that meets energy code requirements.
On the plumbing side, the plans detail the water supply, drainage, and gas systems. This encompasses the layout of cold, hot, and filtered water lines, waste connections, grease traps, and gas piping. Equipment schedules, cut sheets, riser diagrams, and other technical details round out the comprehensive MEP documentation for the Leander Coffee cafes. With this thorough design, the client can efficiently install and operate the necessary mechanical, electrical, and plumbing infrastructure across their growing café locations in central Texas.

At Nance Cafe, we’ve meticulously designed a comprehensive MEP (Mechanical, Electrical, and Plumbing) system to ensure the cafe’s efficient and comfortable operation. Our team has carefully considered the existing equipment and building program to create a tailored solution.
The mechanical design includes a detailed air conditioning, heating, and ventilation layout, complemented by thorough heat load and ventilation calculations. The electrical design features a comprehensive power layout, lighting plan, and power analysis to validate the existing infrastructure. The plumbing design encompasses water supply, drainage, and gas systems, with the selection or validation of essential components like the water heater and grease trap. Throughout the process, we’ve maintained a focus on compliance with relevant codes and regulations, ensuring a safe and efficient environment for the Nance Cafe patrons.

Bemis Family Dental is a 1-story, 6,000 SF stick-frame building that will primarily house a new dental office. The building will be fully air-conditioned and ventilated, except for a small portion that will be leased to a tenant. The dental office is expected to eventually expand into this leased space. Given the presence of overhead trusses, the project team will need to carefully coordinate the HVAC ductwork and other building systems with the structural members.
The MEP design for the building is being provided by GDI Engineering. This includes a full HVAC system, proper lighting per the reflected ceiling plan, power for the dental equipment, breakroom, and other building systems, as well as comprehensive plumbing. The building will have either a gas or electrical service, and the owner may opt for a separate meter and utility connection for the leasable space during the planning stage. The MEP drawings will provide full details on the mechanical, electrical, and plumbing systems, including equipment schedules, layouts, riser diagrams, and load calculations.
Â

Our team is excited to provide the full MEP (mechanical, electrical, and plumbing) design services for the rebuild and addition of this two-story residential project. The design will feature a 1,000 sq ft air-conditioned living space, along with additional unconditioned areas. The HVAC system will be zoned to provide independent temperature control for the bedrooms and main living spaces. Both gas and electric appliances will be specified, and a backup generator will be included for emergency power. The building will have a mix of construction types, with the first floor in concrete block and the second floor in wood frame. Our comprehensive MEP plans will ensure all systems comply with local codes and meet the client’s needs, from the central air conditioning and ventilation, to the lighting, power distribution, plumbing, and gas systems. We look forward to collaborating with the client and design team to deliver a thoughtfully engineered home.

Our team successfully completed a comprehensive MEP (Mechanical, Electrical, Plumbing) and
Structural design project for a 15,799 SF facility located in the Galveston area.
The scope of work included detailed plumbing, mechanical, and electrical design and engineering
services. For the plumbing design, we provided general notes and specification sheets, water supply
calculations, water supply plan design, sewer calculations, gas calculations, and all necessary
details and approvals.
The mechanical design involved HVAC system design, equipment schedules, ventilation
calculations, heat load calculations, equipment selection, and plan check approvals.
On the electrical side, we delivered general notes, power plans, lighting plans, single line diagrams,
panel board schedules, load calculations, and electrical details, along with obtaining plan check
approvals.
Our integrated approach ensured the project met all local code requirements and the client’s
specifications.

The Burt ADU project involves the construction of a new 564.7 square foot, single-story, one-bedroom accessory dwelling unit (ADU) in the rear yard of an existing single-family home in Costa Mesa, California. The project includes the preparation of comprehensive mechanical, electrical, and plumbing (MEP) plans to support the development of this new ADU.
The MEP scope for this project covers a range of key features. The mechanical system design will provide ventilation and air conditioning, with options for either a central air handler and heat pump or ductless mini-split units. The electrical system design includes lighting, power, and dedicated circuits for major appliances such as the air conditioner, range, and EV charger. Additionally, the existing 100-amp electrical panel will be upgraded to a 200-amp service. The plumbing system design addresses the ADU’s water supply, drainage, and a central domestic hot water system, with connections to either the municipal sewer system or a private septic system.
Finally, the project involves coordinating with local utility providers for power, water, and sewer connections, as well as preparing permit-ready MEP plans that address any city comments or requirements. The MEP design will be tailored to meet all relevant building codes and the specific needs and preferences of the client for this new ADU.

The 9,745 square foot, two-story residence at 282 BRYN MAWR Circle in Hunters Creek Village will
feature 5 bedrooms and comprehensive MEP systems designed to meet local code requirements and
the client’s specific needs. The MEP scope of work includes ventilation and central air conditioning
for the entire home, with options for gas furnaces or ductless units in certain rooms.
The HVAC equipment selection and layout will be based on detailed heat load calculations, and
mechanical equipment schedules and general details will be provided.
On the electrical side, the design will cover power distribution, including receptacles, lighting
circuits, and connections for client equipment and appliances. The lighting design will incorporate
fixture selection and controls, while the electrical scope will also include load analysis, panel
schedules, and single-line diagrams.
For the plumbing systems, the plans will detail the domestic water supply from the utility or
well/cistern, drainage and sewer networks (with an option to connect to municipal services or a
private septic system), and gas piping layout for furnaces, water heaters, and other gas-fired
equipment. Plumbing fixture schedules and riser diagrams will also be included.

The Porter Family Residence Alteration project in Arlington, Texas involved the preparation of mechanical, electrical, and plumbing (MEP) plans for a new pool house structure on the property. The MEP design work was focused on providing the necessary HVAC, electrical, and plumbing systems to support the pool house and outdoor living areas.
The mechanical scope included designing the air conditioning, ventilation, and humidity control systems for the pool area and adjacent covered patio. This involved selecting appropriate HVAC equipment, laying out ductwork and diffuser locations, and ensuring the system met all local code requirements. The electrical design covered lighting, power receptacles, and the electrical service to support the new pool house loads. A full load analysis was performed to size the electrical service and panel board. The plumbing design did not require changes, as the existing pool structure was not being modified. The project team worked closely with the client to understand their specific needs and preferences for the space, while also adhering to all relevant building codes.
Overall, this MEP design project enabled the transformation of the Porter family’s outdoor living space, providing a comfortable and functional pool house experience. The detailed technical deliverables, including equipment schedules, layout plans, and power one-lines, ensured a comprehensive set of construction documents for the builders to execute the project.

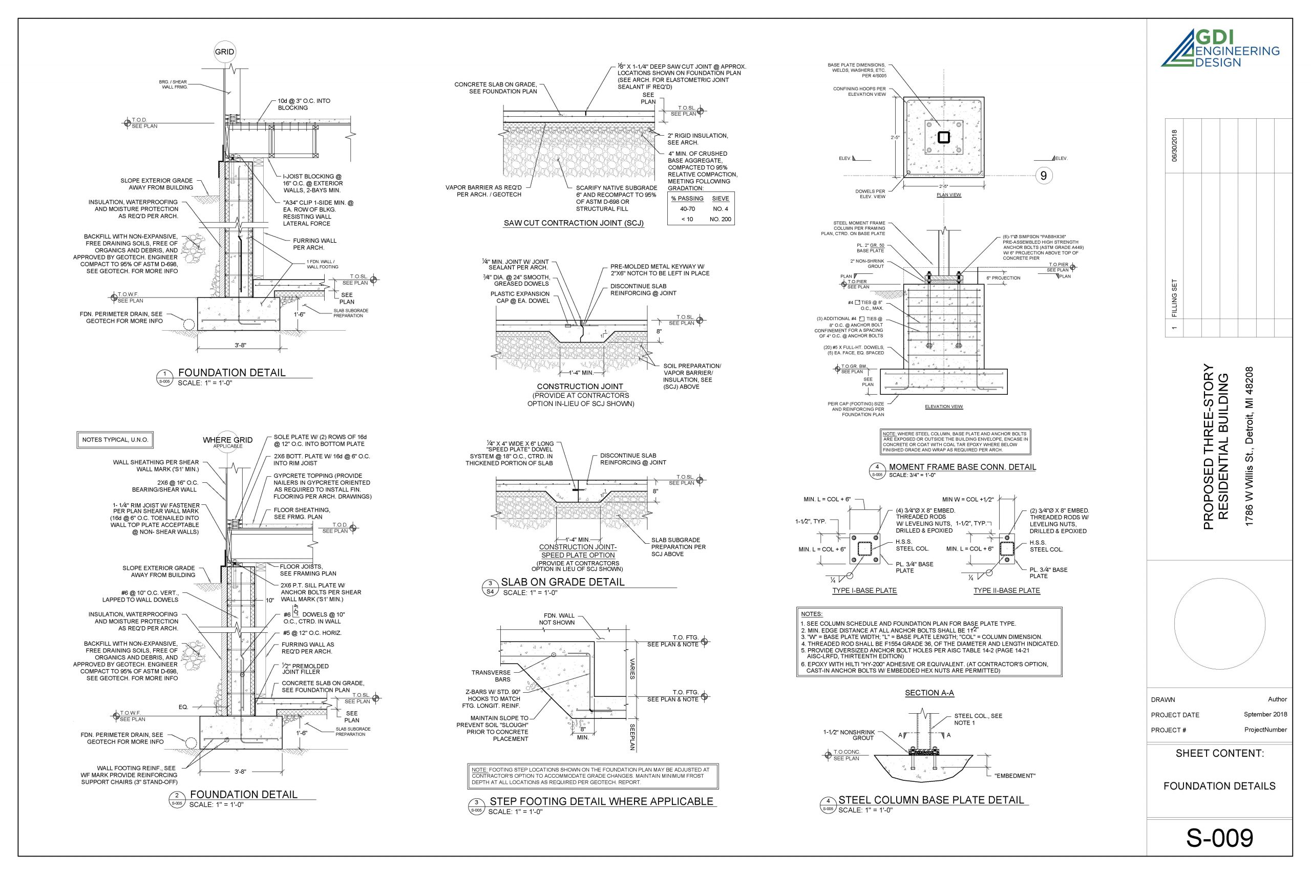
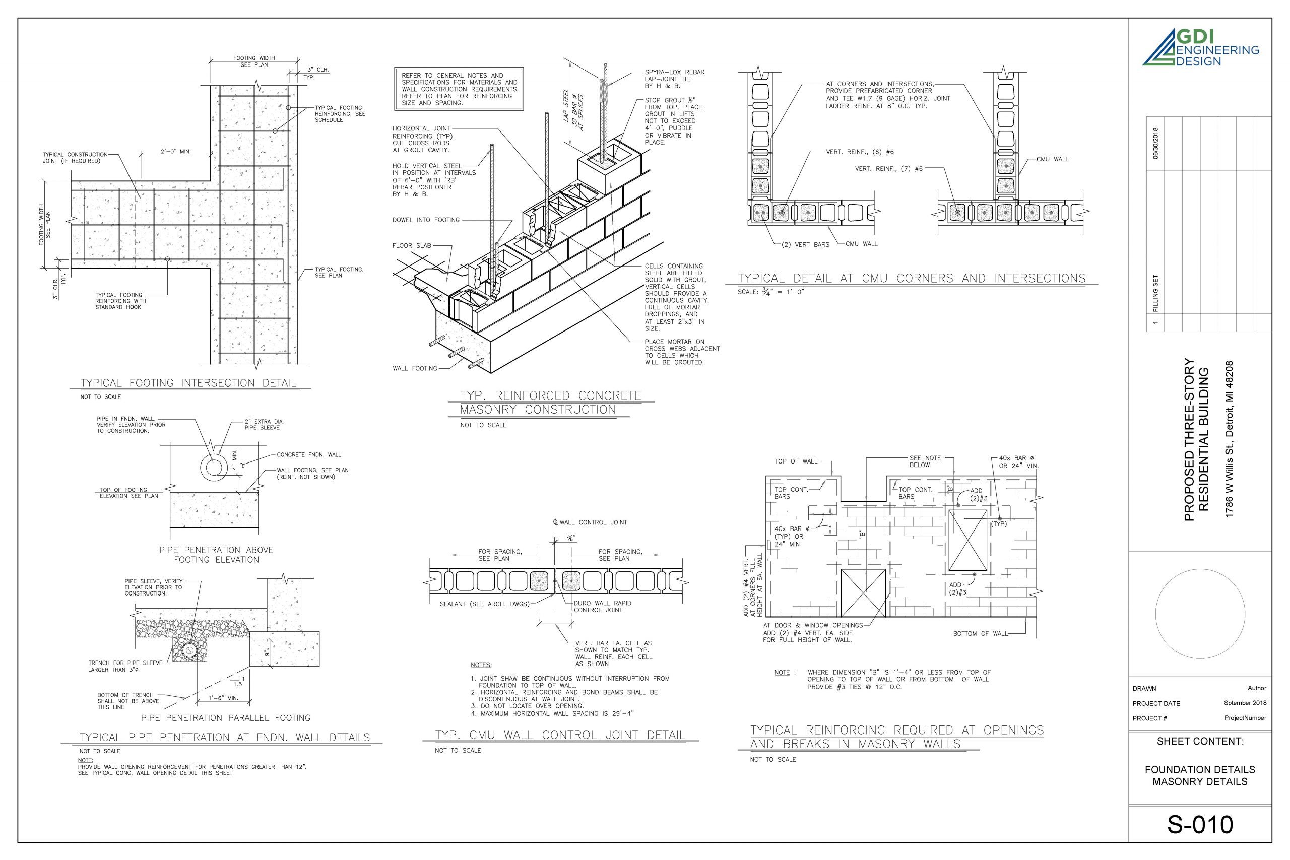
At GDI Engineering our team of experienced structural engineers utilized advanced analysis methods to deliver a robust and optimized design for this project.
A thorough structural analysis was conducted using the industry-leading FEA software RFEM 6, ensuring our design fully adheres to the relevant building codes and standards for the project location. All critical load-bearing elements and framing components have been carefully designed, and verified to meet both ultimate and serviceability limit state requirements. The detailed construction solutions have been accurately reflected in the project drawings, providing a clear visual representation of the proposed structural system.
Scope of Work
The project scope covered the full breadth of structural design services. Our team performed comprehensive loading analyses, evaluating the impacts of wind, seismic, dead, and live loads on the structure. These assessments informed detailed 3D structural modeling and in-depth engineering reporting. We then conducted thorough structural analysis and design calculations for all major load-bearing components, including the foundations, columns, beams, and rafters. This rigorous engineering work ensured the design met all applicable code requirements. To complete the project deliverables, we provided a full construction documentation package, featuring a 3D Revit model, foundation plan, floor framing plans, roof framing plan, as well as a comprehensive set of structural details, notes, and specifications.
By combining advanced analysis techniques, rigorous engineering, and clear documentation, our team delivered a structurally sound and constructible design solution for this project. Contact us today to learn how we can apply our expertise to your next structural engineering challenge.

Our team provided comprehensive structural design services for a 2,411 square foot facility. This project involved a thorough analysis to determine the appropriate loading conditions, including wind, seismic, dead, and live loads. We utilized advanced modeling and engineering analysis techniques to ensure the structural integrity of the building.
The detailed structural design calculations covered all key components, from the foundations to the columns, beams, and rafters. Our work included a Revit model, foundation plan, floor framing plans, roof framing plan, and a full set of structural details, notes, and specifications. The structural design was carried out in accordance with the provisions of the 2018 International Building Code, with the analysis performed using the RFEM 6 finite element analysis software. This rigorous approach allowed us to design all load-bearing elements and framing components to meet both ultimate and serviceability limit states, providing a robust and reliable structural solution reflected in the project drawings.

Prospect Heights Redevelopment
Prospect Heights is a residential development that is part of the HACA (Housing Authority of the City of Austin) redevelopment of Rosewood Courts housing at Chicon and Rosewood Avenue. This is a large, multi-phase project with a single site development plan. The multifamily portion is currently under construction, and the final phase will be a set of 6 “townhouse” units, which are technically classified as duplexes due to the MF4 zoning.
GDI Engineering has been tasked with providing the MEP (mechanical, electrical, and plumbing) design for the Prospect Heights project. Our work will be done as part of the final phase, which includes the 6 townhouse units. Each unit will have its own meters and address, and they will be for-purchase units developed by Habitat for Humanity. Our MEP designs will be incorporated into the overall site development plan as a correction to the existing permits.

This project involved providing the mechanical, electrical, and plumbing (MEP) design for a proposed building in McKinney, Texas. The key elements of the mechanical design included preparation of mechanical plans for the building, including the pool, gym, bedrooms, and other relative rooms.
The project also involved conducting heat load calculations to validate the capacity of the proposed HVAC units, which were specified to match the models mentioned in the bidding sheets. The scope excluded site plans, external works, electrical, plumbing, sauna, and steam room elements. The mechanical scope included work specifications, mechanical layout for air conditioning and ventilation per code requirements and client input, equipment schedules, ventilation and heat load calculations, equipment selection, and general details. The project leveraged industry standards and best practices to deliver a comprehensive mechanical design solution tailored to the client’s needs and the building’s requirements.

The Weber Project in Wimberley, Texas is situated on a 2,411 square foot site. A comprehensive structural analysis was conducted using the RFEM 6 finite element analysis software, ensuring the design complies with all relevant building standards for the local area. All load-bearing elements and framing components have been carefully engineered to meet both ultimate and serviceability limit states. The detailed construction solutions have been accurately reflected in the project drawings, providing a clear visual representation of the proposed design.

This project focuses on the comprehensive rehabilitation of a senior living establishment in Greenwich, CT, transforming it into 17 modern apartment units. GDI Engineering has been entrusted with the mechanical, electrical, and plumbing (MEP) design for these renovations. The scope of work encompasses the development of a new air conditioning and ventilation system tailored for the 27,000 square foot building, along with a robust electrical power system that includes options for individual metering for each apartment. Additionally, new lighting plans will feature energy-efficient fixtures and controls, enhancing both functionality and sustainability.
In terms of plumbing, the project will introduce a fully integrated system that includes new fixtures, water supply, and sewer connections, with provisions for individual water metering. The design will also specify a new water heating system, offering flexibility between central and individual setups based on client preferences. Furthermore, the optimal heating system—either gas-fed or electric—will be determined according to the existing utility services available. All MEP designs will be executed with careful consideration of the existing building’s structure to minimize invasive alterations, ensuring a seamless integration into the current environment.

Avon Gates Apartments, located on Blountstown Street in Tallahassee, Florida, is a thoughtfully designed
community featuring six buildings, each housing 24 spacious units. With a total heated and cooled area of
34,014 square feet and an overall roofed area of 37,014 square feet, this project is tailored to provide
residents with a comfortable and modern living environment. The layout promotes a sense of community while
offering the privacy and amenities that residents desire.
GDI Engineering has played a crucial role in the structural integrity of this development. Our team of skilled
structural engineers has conducted comprehensive analyses to ensure that every aspect of the buildings
meets rigorous safety standards and local codes. Utilizing advanced tools like Revit, we have developed
detailed structural drawings, including foundation plans and elevations, ensuring a robust design that
supports the community’s long-term durability. The meticulous engineering report documents our design
process, reinforcing our commitment to transparency and excellence as we lay the groundwork for a thriving
144-unit residential complex.

Fort Worth Multifamily 3-Story 6-Unit Apartment MEP Design
GDI Engineering was engaged to provide the mechanical, electrical, and plumbing (MEP) design for this new 3-story, 6-unit apartment building in Fort Worth, Texas. The project features a ground floor garage, with the 2nd and 3rd floors dedicated to the residential living spaces. A rooftop outdoor amenity space is also included.
Our MEP engineering scope included the design of the HVAC systems, electrical power distribution, lighting, plumbing, and fire protection systems to serve the apartment units and common areas. We worked closely with the architectural and structural teams to coordinate the integration of these building systems throughout the design process.
The goal was to develop energy-efficient, cost-effective MEP solutions that would provide a comfortable living environment for the residents while meeting all applicable building codes and standards. Our designs emphasized system reliability, maintainability, and flexibility to accommodate the needs of future tenants.
This project showcases GDI’s expertise in multifamily residential MEP engineering, delivering high-quality design documents on schedule and within budget to support the overall construction of this new apartment community.

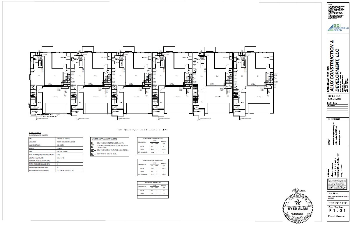
This 3.32-acre development in Irving, Texas features the first phase of a new townhouse community. The initial phase includes 6 townhome units with a total footprint of 8,154 square feet, spread across two stories.
GDI ENGINEERING was engaged to provide the full mechanical, electrical, and plumbing (MEP) design for this townhouse project. Working in close collaboration with the project architect, GDI ENGINEERING completed the MEP design in just 12 working days.
GDI ENGINEERING was tasked with providing the full mechanical, electrical, and plumbing (MEP) design for this new 6-unit townhouse development in Irving, Texas. Working closely with the project architect, GDI ENGINEERING completed the comprehensive MEP design in just 12 working days. The integrated MEP systems were tailored to meet the needs of the residential units and common areas within the 3.32-acre site. This included designing efficient HVAC equipment and ventilation for each townhome, along with power distribution, lighting, and plumbing infrastructure to support the living spaces. By collaborating closely with the architectural team, GDI ENGINEERING was able to develop an MEP solution that aligned with the design intent while ensuring all technical and code requirements were fulfilled, allowing the project to stay on schedule.

GDI Engineering has taken on the challenge of revitalizing a 1960s 2-story hotel into a modern multifamily apartment complex. This renovation project involves the design of entirely new mechanical, electrical, plumbing, and fire sprinkler systems to breathe new life into the aging structure.
Working closely with the architectural team from the outset, GDI’s engineers have meticulously designed the building’s systems to meet the latest standards and provide residents with a comfortable and efficient living environment. From calculating heat loads and selecting HVAC equipment to designing the power distribution and plumbing infrastructure, every aspect of the project has been thoroughly considered to ensure a successful transformation.
By leveraging their expertise and collaboration with the client, GDI Engineering is poised to deliver a comprehensive MEP and fire sprinkler solution that will enhance the living experience for the Abilene apartment community.

CareOnes Daycare Cleburne Texas is a renovation project that converted an existing building into a new daycare center. The main building is 5,250 square feet, with an additional 1,600 square foot side building. GDI was hired to design the mechanical, electrical, and plumbing (MEP) systems for the facility, focusing on maximizing the use of the existing infrastructure while staying within budget constraints.
Despite the challenges of working with an older building, the project was completed on time and exceeded the expectations of the architect. The new daycare center provides a safe, comfortable, and modern environment for the children of Cleburne. By repurposing an existing structure, the project also demonstrates a commitment to sustainable building practices. Overall, the CareOnes Daycare Cleburne Texas renovation is a successful example of transforming a dated facility into a functional and high-quality daycare center.

The Unity Children’s Home Daycare is a new 6,000 square foot, two-story building constructed to house a daycare facility. GDI was hired to design the mechanical, electrical, and plumbing (MEP) systems for the project and provide the full set of construction documents. This includes designing the HVAC, electrical, and plumbing systems to meet the needs of the daycare operation. The MEP design had to ensure the building provided a comfortable, safe, and code-compliant environment for the children and staff. Key considerations included sufficient heating, cooling, ventilation, lighting, and plumbing fixtures to serve the classrooms, offices, and other functional spaces. GDI’s MEP engineering expertise allowed them to develop a comprehensive design package to guide the construction of this new children’s daycare facility. The completed building will provide a modern, high-quality space to support the educational and developmental needs of the children in the community.

The 51 Unit Fitness Facility project focuses on the comprehensive preparation of Mechanical, Electrical, and
Plumbing (MEP) systems for a shop alteration transforming the space into a modern fitness center. Our
technical proposal emphasizes adherence to local codes while tailoring MEP services to meet the specific needs
of the client. This includes detailed planning for utilities such as electrical and gas, alongside a complete
mechanical scope that covers ventilation and air conditioning systems. Our approach ensures that all air
conditioning solutions are aligned with existing mechanical equipment and the new calculated loads, providing
optimal comfort for fitness center patrons.
In addition to mechanical considerations, our electrical scope encompasses lighting and power supply, ensuring
effective distribution and compliance with applicable standards. This includes the selection of lighting fixtures
and controls, as well as the necessary infrastructure for power receptacles and client equipment. Our plumbing
system design addresses all wet areas, central hot water systems, and necessary gas connections, ensuring a
fully integrated service. We will also facilitate connections to the sewer network where available. The project will
commence upon receipt of complete client responses to our technical inquiries, ensuring that we meet the
highest standards from the outset while remaining responsive to any adjustments required throughout the
process.

his project involves the MEP (mechanical, electrical, and plumbing) design for a new 3-story climatecontrolled self-storage building in College Station, Texas.
The mechanical design considers a fully air-conditioned and ventilated building, providing HVAC for occupant
comfort and air renewal, as well as exhaust systems. The HVAC will likely be provided by packaged rooftop
units or split air handlers, with provisions for humidity control. Mechanical equipment sizing will be based on
detailed load calculations.
The electrical design includes a comprehensive lighting layout with controls, power distribution for
receptacles, HVAC, plumbing, and other systems. A single electrical service with a load analysis and panel
schedules is included. Exterior lighting and potential EV charging stations are also part of the scope.
The plumbing design covers the domestic water supply, sanitary sewer, and gas piping systems. Plumbing
fixtures and equipment will be specified based on calculated demands. Exterior utilities will be coordinated
with the civil engineer.
The MEP design will comply with all relevant codes and standards. It includes addressing one round of
internal review comments and any comments received during the permitting process. Construction
administration services are not included.

Located in Lubbock, Texas, the West Texas Graduation Services project involved the meticulous preparation of a comprehensive MEP design set for a 6,500 sq. ft. expansion. This included the addition of both storage space and office facilities within the existing building. Our team ensured that all MEP services conformed to local codes and were tailored to meet the specific needs of the client, incorporating a new demising wall, as well as ventilation and air conditioning solutions for the newly altered areas.
The electrical scope encompassed both lighting and power supply, with careful selection of fixtures and controls to meet regulatory standards. Additionally, the plumbing system was designed to accommodate new fixtures, including point-of-use electric water heaters. Throughout the process, we collaborated closely with the client to address technical inquiries and ensure compliance, ultimately facilitating a smooth permitting process.

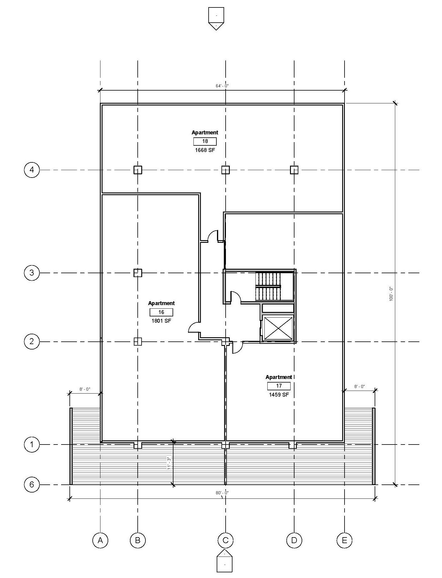
1215 Centennial Lofts is a five-story, 259-unit apartment project located in Spokane, Washington. The 223,994 square foot facility sits on a 50-acre lot and includes a variety of unit types, including studios, one-bedrooms, and two-bedrooms.
The project features 420 parking spaces, as well as amenities such as a clubhouse, café, fitness center, recreation center, and pools. GDI Engineering has been tasked with the structural and MEP (mechanical, electrical, and plumbing) design for the facility.
GDI Engineering Scope of Work
The technical outline for the MEP design of the 1215 Centennial Lofts project in Spokane, Washington is comprehensive. It includes the preparation of permit-ready plans for the 259 units and retail spaces, design of the HVAC, lighting, and power systems, as well as plumbing and utilities. Key components cover dedicated electrical and water metering, heating and appliance specifications, exterior lighting, and energy compliance reporting. This detailed MEP design work aims to ensure the 5-story apartment complex is equipped with high-quality, code-compliant mechanical, electrical, and plumbing systems.

Fort Worth Multifamily 3-Story 6-Unit Apartment MEP Design
GDI Engineering was engaged to provide the mechanical, electrical, and plumbing (MEP) design for this new 3 story, 6-unit apartment building in Fort Worth, Texas. The project features a ground floor garage, with the 2nd and 3rd floors dedicated to the residential living spaces. A rooftop outdoor amenity space is also included. Our MEP engineering scope included the design of the HVAC systems, electrical power distribution, lighting, plumbing, and fire protection systems to serve the apartment units and common areas. We worked closely with
the architectural and structural teams to coordinate the integration of these building systems throughout the design process.
The goal was to develop energy-efficient, cost-effective MEP solutions that would provide a comfortable living environment for the residents while meeting all applicable building codes and standards. Our designs emphasized system reliability, maintainability, and flexibility to accommodate the needs of future tenants. This project showcases GDI’s expertise in multifamily residential MEP engineering, delivering high-quality design documents on schedule and within budget to support the overall construction of this new apartment community.

At GDI Engineering our team of experienced structural engineers utilized advanced analysis methods to deliver a
robust and optimized design for this project.
All critical load-bearing elements and framing components have been carefully designed, and verified to meet both ultimate and serviceability limit state requirements. The detailed construction solutions have been accurately reflected in the project drawings, providing a clear visual representation of the proposed structural system. The project scope covered the full breadth of structural design services. Our team performed comprehensive loading analyses, evaluating the impacts of wind, seismic, dead, and live loads on the structure. These assessments informed detailed 3D structural modeling and in-depth engineering reporting. We then conducted thorough structural analysis and design calculations for all major load-bearing components, including the foundations, columns, beams, and rafters. This rigorous engineering work ensured the design met all applicable code requirements. To complete the project deliverables, we provided a full construction documentation package, featuring a 3D Revit model, foundation plan, floor framing plans, roof framing plan, as well as a comprehensive set of structural details, notes, and specifications. By combining advanced analysis techniques, rigorous engineering, and cleardocumentation, our team delivered a structurally sound and constructible design solution for this project. Contact us today to learn how we can apply our expertise to your next structural engineering challenge
Â

Avon Gates Apartments, located on Blountstown Street in Tallahassee, Florida, is a thoughtfully designed
community featuring six buildings, each housing 24 spacious units. With a total heated and cooled area of 34,014 square feet and an overall roofed area of 37,014 square feet, this project is tailored to provide residents with a comfortable and modern living environment. The layout promotes a sense of community while offering the privacy and amenities that residents desire.
GDI Engineering has played a crucial role in the structural integrity of this development. Our team of skilled
structural engineers has conducted comprehensive analyses to ensure that every aspect of the buildings meets rigorous safety standards and local codes. Utilizing advanced tools like Revit, we have developed detailed structural drawings, including foundation plans and elevations, ensuring a robust design that supports the community’s long-term durability. The meticulous engineering report documents our design process, reinforcing our commitment to transparency and excellence as we lay the groundwork for a thriving 144-unit residential complex.
Â

Our team is excited to provide the full MEP (mechanical, electrical, and plumbing) design services for the rebuild and addition of this two-story residential project.
The design will feature a 1,000 sq ft air-conditioned living space, along with additional unconditioned
areas.
The HVAC system will be zoned to provide independent temperature control for the bedrooms and main
living spaces.
Both gas and electric appliances will be specified, and a backup generator will be included for emergency power.
The building will have a mix of construction types, with the first floor in concrete block and the second
floor in wood frame.
Our comprehensive MEP plans will ensure all systems comply with local codes and meet the client’s
needs, from the central air conditioning and ventilation, to the lighting, power distribution, plumbing, and gas systems.
We look forward to collaborating with the client and design team to deliver a thoughtfully engineered home
Â

The Burt ADU project involves the construction of a new 564.7 square foot, single-story, one bedroom accessory dwelling unit (ADU) in the rear yard of an existing single-family home in Costa Mesa, California. The project includes the preparation of comprehensive mechanical, electrical, and plumbing (MEP) plans to support the development of this new ADU.
The MEP scope for this project covers a range of key features. The mechanical system design will provide ventilation and air conditioning, with options for either a central air handler and heat pump or ductless mini-split units. The electrical system design includes lighting, power, and dedicated circuits for major appliances such as the air conditioner, range, and EV charger. Additionally, the existing 100-amp electrical panel will be upgraded to a 200-amp service. The plumbing system design addresses the ADU’s water supply, drainage, and a central domestic hot water system, with connections to either the municipal sewer system or a private septic system. Finally, the project involves coordinating with local utility providers for power, water, and sewer connections, as well as preparing permit-ready MEP plans that address any city comments or requirements. The MEP design will be tailored to meet all relevant building codes and the specific needs andpreferences of the client for this new ADU..
Â

Fort Worth Multifamily 3-Story 6-Unit Apartment MEP Design
GDI Engineering was engaged to provide the mechanical, electrical, and plumbing (MEP) design for this new 3-story, 6-unit apartment building in Fort Worth, Texas. The project features a ground floor garage, with the 2nd and 3rd floors dedicated to the residential living spaces. A rooftop outdoor amenity space is also included.
Our MEP engineering scope included the design of the HVAC systems, electrical power distribution, lighting, plumbing, and fire protection systems to serve the apartment units and common areas.
We worked closely with the architectural and structural teams to coordinate the integration of these building systems throughout the design process.
The goal was to develop energy-efficient, cost-effective MEP solutions that would provide a comfortable living environment for the residents while meeting all applicable building codes and standards. Our designs emphasized system reliability, maintainability, and flexibility to accommodate the needs of future tenants.
This project showcases GDI’s expertise in multifamily residential MEP engineering, delivering high-quality design documents on schedule and within budget to support the overall construction of this new apartment community.
Â

Fort Worth Multifamily 3-Story 6-Unit Apartment MEP Design
Located in Lubbock, Texas, the West Texas Graduation Services project involved the meticulous preparation of a comprehensive MEP design set for a 6,500 sq. ft. expansion. This included the addition of both storage space and office facilities within the existing building. Our team ensured that all MEP services conformed to local codes and were tailored to meet the specific needs of the client, incorporating a new demising wall, as well as ventilation and air conditioning solutions for the newly altered areas. The electrical scope encompassed both lighting and power supply, with careful selection of fixtures and
controls to meet regulatory standards. Additionally, the plumbing system was designed to accommodate new fixtures, including point-of-use electric water heaters. Throughout the process, we collaborated closely with the client to address technical inquiries and ensure compliance, ultimately facilitating a smooth permitting process.
Â

The WEC Retail project in Florida involved the preparation of MEP (Mechanical, Electrical,
and Plumbing) and structural design for a retail development.
The MEP design covered a total of 7 warm shell buildings intended for retail use, including
tenant improvement plans for specific units. The mechanical design incorporated chilled water air handling units connected to a district cooling network, flexible ductwork layout, and plumbing for restrooms and HVAC drainage.
The electrical design included lighting, power, and emergency lighting for the buildings.
Structural analysis and design were performed for the foundations, columns, walls, slabs,
beams, and roof framing. Deliverables included construction documents, load calculations, Revit models, and energy compliance reports. This comprehensive design work aimed to provide a turnkey solution for the retail development project in Florida
Â

The Weber Project in Wimberley, Texas is situated on a 2,411 square foot site.
A comprehensive structural analysis was conducted using the RFEM 6 finite element analysis software, ensuring the design complies with all relevant building standards for the local area.
All load-bearing elements and framing components have been carefully engineered to meet both ultimate and serviceability limit states.
The detailed construction solutions have been accurately reflected in the project drawings, providing a clear visual representation of the proposed design
Â

In McKinney, Texas, our team completed the MEP (Mechanical, Electrical, and Plumbing) design for a new Sherwin Williams retail store. The project encompassed a total surface area of 10,065 square feet. The key aspects of the project included:
Mechanical Systems: The HVAC system consists of two electric cooling and gas heating packaged rooftop units – one dedicated to the wholesale area and the other serving the remaining spaces. The rooftop units were strategically placed to align with the existing building openings. The design also included detailed ventilation and heat load calculations to ensure code compliance and occupant comfort.
Electrical Systems: The electrical scope covered the power distribution, lighting, and controls. This included the
preparation of power plans for tenant equipment, mechanical, and plumbing loads. A dedicated electrical meter was provided for the tenant space. The lighting design incorporated both normal and emergency lighting systems with comprehensive lighting controls.
Plumbing Systems: The plumbing design addressed the water supply, drainage, and waste networks for the restrooms
and tenant equipment. It featured an electric water heater, floor drains for the restrooms, and area drains as required. The plumbing design was coordinated with the existing shell provisions. The project also included the preparation of a COMcheck energy report covering the internal lighting, external lighting, and mechanical equipment to ensure energy code compliance. Our team provided comprehensive MEP design services,
addressing one internal round of comments and all city permitting requirements until the final approval was obtained.
Â

At Nance Cafe, we’ve meticulously designed a comprehensive MEP (Mechanical, Electrical, and Plumbing) system to ensure the cafe’s efficient and comfortable operation. Our team has carefully considered the existing equipment and building program to create a tailored solution.
·The mechanical design includes a detailed air conditioning, heating, and ventilation layout, complemented by thorough heat load and ventilation calculations. The electrical design features a comprehensive power layout, lighting plan, and power analysis to validate the existing infrastructure. The plumbing design encompasses water supply, drainage, and gas systems, with the selection or validation of essential components like the water heater
and grease trap. Throughout the process, we’ve maintained a focus on compliance with relevant codes and
regulations, ensuring a safe and efficient environment for the Nance Cafe patrons.
Â

The Frullati Cafe project involved ensuring the functionality and efficiency of the existing restaurant space through comprehensive mechanical, electrical, and plumbing (MEP) upgrades. The key aspects of the project include:
·Preparation of MEP plans for the cafe’s permit, leveraging the existing infrastructure like the kitchen hood, gas system, power supply, and grease trap. The MEP design addressed the client’s specifications and local code requirements based on the new occupancy defined in the architectural plans.
·Engineering calculations and MEP system adaptations to accommodate the client’s needs, while keeping the existing service connections (water, gas, electrical, and sewer) unchanged. The project scope also considered removing the existing kitchen hood, as it was not required for the new Frullati Cafe layout.
·Comprehensive MEP scope, including mechanical layout, electrical power and lighting plans, and plumbing supply, drainage, and gas networks. The design ensured code compliance and integration with the client’s equipment and fixtures. This project demonstrates the team’s ability to optimize the functionality of an existing commercial space by integrating new tenant requirements with the existing building systems, ensuring a seamless and code-compliant transition for the Frullati Cafe.
Â

The Unity Children’s Home Daycare is a new 6,000 square foot, two-story building constructed to house a daycare facility. GDI was hired to design the mechanical, electrical, and plumbing (MEP) systems for the project and provide the full set of construction documents. This includes designing the HVAC, electrical, and plumbing systems to meet the needs of the daycare operation. The MEP design had to ensure the building provided a comfortable, safe, and code-compliant environment for the children and staff. Key
considerations included sufficient heating, cooling, ventilation, lighting, and plumbing fixtures to serve the
classrooms, offices, and other functional spaces. GDI’s MEP engineering expertise allowed them to develop a comprehensive design package to guide the construction of this new children’s daycare facility. The completed building will provide a modern, high-quality space to support the educational and developmental needs of the children in the community.
Â

Fort Worth Multifamily 3-Story 6-Unit Apartment MEP Design
GDI Engineering was engaged to provide the mechanical, electrical, and plumbing (MEP) design for this new 3-story, 6-unit apartment building in Fort Worth, Texas. The project features a ground floor garage, with the 2nd and 3rd floors dedicated to the residential living spaces. A rooftop outdoor amenity space is also included.
Our MEP engineering scope included the design of the HVAC systems, electrical power distribution, lighting, plumbing, and fire protection systems to serve the apartment units and common areas.
We worked closely with the architectural and structural teams to coordinate the integration of these building systems throughout the design process.
The goal was to develop energy-efficient, cost-effective MEP solutions that would provide a comfortable living environment for the residents while meeting all applicable building codes and standards. Our designs emphasized system reliability, maintainability, and flexibility to accommodate the needs of future tenants.
This project showcases GDI’s expertise in multifamily residential MEP engineering, delivering high-quality design documents on schedule and within budget to support the overall construction of this new apartment community.
Â

Bemis Family Dental is a 1-story, 6,000 SF stick-frame building that will primarily house a new dental office. The building will be fully air-conditioned and ventilated, except for a small portion that will be leased to a tenant. The dental office is expected to eventually expand into this leased space. Given the presence of overhead trusses, the project team will need to carefully coordinate the HVAC ductwork and other building systems with the structural members.
The MEP design for the building is being provided by GDI Engineering. This includes a full HVAC system, proper lighting per the reflected ceiling plan, power for the dental equipment, breakroom, and other building systems, as well as comprehensive plumbing. The building will have either a gas or electrical service, and the owner may opt for a separate meter and utility connection for the leasable space during the planning stage. The MEP drawings will provide full details on the mechanical, electrical, and plumbing
systems, including equipment schedules, layouts, riser diagrams, and load calculations.
Â

1215 Centennial Lofts is a five-story, 259-unit apartment project located in Spokane, Washington. The 223,994 square foot facility sits on a 50-acre lot and includes a variety of unit types, including studios, one-bedrooms, and two-bedrooms.
The project features 420 parking spaces, as well as amenities such as a clubhouse, café, fitness center, recreation center, and pools. GDI Engineering has been tasked with the structural and MEP (mechanical, electrical, and plumbing) design for the facility.
GDI Engineering Scope of Work
The technical outline for the MEP design of the 1215 Centennial Lofts project in Spokane, Washington is comprehensive. It includes the preparation of permit-ready plans for the 259 units and retail spaces, design of the HVAC, lighting, and power systems, as well as plumbing and utilities. Key components cover dedicated electrical and water metering, heating and appliance specifications, exterior lighting, and energy compliance reporting. This detailed MEP design work aims to ensure the 5-story apartment complex is equipped with high-quality, code-compliant mechanical, electrical, and plumbing systems.
Â
Fort Worth Multifamily 3-Story 6-Unit Apartment MEP Design
GDI Engineering was engaged to provide the mechanical, electrical, and plumbing (MEP) design for this new 3- story, 6-unit apartment building in Fort Worth, Texas. The project features a ground floor garage, with the 2nd and 3rd floors dedicated to the residential living spaces. A rooftop outdoor amenity space is also included.
Our MEP engineering scope included the design of the HVAC systems, electrical power distribution, lighting, plumbing, and fire protection systems to serve the apartment units and common areas. We worked closely with the architectural and structural teams to coordinate the integration of these building systems throughout the design process.
The goal was to develop energy-efficient, cost-effective MEP solutions that would provide a comfortable living environment for the residents while meeting all applicable building codes and standards. Our designs emphasized system reliability, maintainability, and flexibility to accommodate the needs of future tenants.
This project showcases GDI’s expertise in multifamily residential MEP engineering, delivering high-quality design documents on schedule and within budget to support the overall construction of this new apartment community.